Заказать
Объемно-планировочные решения
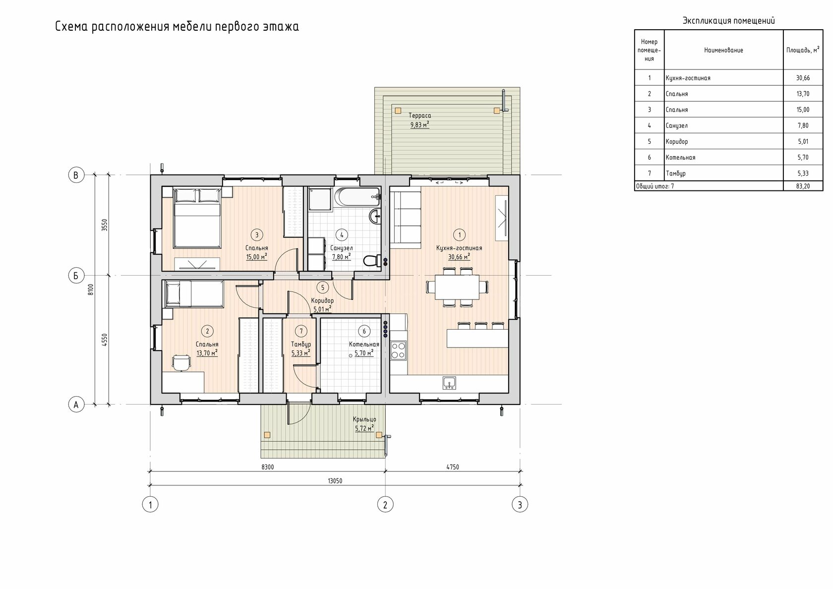
· Количество наземных этажей: 2
· Наличие подвала или цокольного этажа: нет
· Габаритные размеры дома в плане: 15,44 х 12,34 м
· Высота 1 этажа (от пола до потолка): 3,050 м
· Высота 2 этажа (от пола до потолка): 2,920 м
· Проектная нулевая отметка: уровень чистого пола 1-го этажа
· Верхняя высотная отметка здания: +9,321 м
Конструктивные решения:
1. Наружные стены (по направлению к внешнему слою):
• кладка из газобетонных блоков размерами 600х400х300 мм /D600 /В3.5 (не ниже) ГОСТ 31360-2007 на клеевом
растворе для тонкошовной кладки с обеспечением нормального сцепления не менее 180кПа.
• минеральная теплоизоляция, 100 мм
• система навесного вентилируемого фасада, 100 мм
2. Внутренние несущих стены:
• кладка из газобетонных блоков размерами 600х300х300 мм /D600 /В3.5 (не ниже) ГОСТ 31360-2007 на клеевом
растворе для тонкошовной кладки с обеспечением нормального сцепления не менее 180кПа.
3. Внутренние перегородки:
• кладка из газобетонных блоков размерами 600х150х300 мм /D600 /В3.5 (не ниже) ГОСТ 31360-2007 на клеевом
растворе для тонкошовной кладки с обеспечением нормального сцепления не менее 180кПа.
4. Вид фундамента:
• плоская монолитная фундаментная плита
5. Перекрытие над первым этажом:
• монолитная железобетонная плита перекрытия
6. Перекрытие над вторым этажом:
• монолитная железобетонная плита перекрытия
7. Конструкция кровли:
• многоскатная
Объект проектирования: индивидуальный жилой дом
· Раздел проекта: архитектурно-строительные решения (АС)
• Условия строительства: летние условия строительства
Характеристики места строительства
• Район строительства: Сахалинская область
• Расчетная зимняя температура наиболее холодной пятидневки, об. 0,92 (СП 131.13330.2018): минус 21 °С
• Расчетная внутренняя температура воздуха: 22 °С
• Градусо-сутки отопительного периода, ГСОП (СП 131.13330.2018 и СП 50.13330.2012): 5540 °С*сут/год
• Снеговой район, снеговая нагрузка (карты Приложения Ж СП 20.13330.2016): VIII район, 400 кгс/м2 (4,0кПа)
• Сейсмичность района строительства по шкале MSK-64 (СП 14.13330.2018): 8 баллов. Сейсмостойкость проектируемого
объекта в соответствии с техническим заданием заказчика - 9 баллов.
габариты: 15,44 х 12,34 м

Площадь: 288

Регион: Сахалинская область
Растягивайте этот блок по высоте, до необходимой. Высота отображаемой области текста бдет равна высоте данного блока.
Подробнее...
3D
Смотрите также
Заголовок-Поволжье
Тестовое описание
Габариты
32,5 х 12,3
Площадь
348 м2
Подробнее
Заголовок-Беларусь
Тестовое описание
Габариты
38,5 х 14,7
Площадь
427 м2
Подробнее
Заголовок-Краснодар
Тестовое описание
Габариты
10 х 8,9 м
Площадь
143 м2
Подробнее
Заголовок-Италия
Тестовое описание
Габариты
10,0 х 13,8
Площадь
427 м2
Подробнее
[{"__uid":"896552639061","img_url":"https://static.tildacdn.com/tild6364-6335-4636-a136-616662333138/project_stages_4.jpg","title":"Заголовок-Поволжье","description":"Тестовое описание","article":"DFC-815465k2","options_map":[["Габариты","32,5 х 12,3"],["Площадь","348 м2"],["Спальни","6"],["Этажность","2"],["Регион","Москва"],["Тип кровли","тестовый"],["Сесмика","есть"],["Серия","Поволжье"],["Ссылка","http://ux-up.ru/"]]},{"__uid":"919356761371","img_url":"https://static.tildacdn.com/tild6364-6335-4636-a136-616662333138/project_stages_4.jpg","title":"Заголовок-Беларусь","description":"Тестовое описание","article":"DFC-815465k2","options_map":[["Габариты","38,5 х 14,7"],["Площадь","427 м2"],["Спальни","4"],["Этажность","3"],["Регион","Бурятия"],["Тип кровли","тестовый 2"],["Сесмика","нет"],["Серия","Беларусь"],["Ссылка","http://ux-up.ru/"]]},{"__uid":"803370221401","img_url":"https://static.tildacdn.com/tild6364-6335-4636-a136-616662333138/project_stages_4.jpg","title":"Заголовок-Краснодар","description":"Тестовое описание","article":"DFC-815465k2","options_map":[["Габариты","10 х 8,9 м"],["Площадь","143 м2"],["Спальни","3"],["Этажность","2"],["Регион","Крым"],["Тип кровли","тестовый 3"],["Сесмика","есть"],["Серия","Краснодар"],["Ссылка","http://ux-up.ru/"]]},{"__uid":"666879895321","img_url":"https://static.tildacdn.com/tild6364-6335-4636-a136-616662333138/project_stages_4.jpg","title":"Заголовок-Италия","description":"Тестовое описание","article":"DFC-815465k2","options_map":[["Габариты","10,0 х 13,8"],["Площадь","427 м2"],["Спальни","4"],["Этажность","1"],["Регион","Тульская область"],["Тип кровли","тестовый 2"],["Сесмика","нет"],["Серия","Италия"],["Ссылка","http://ux-up.ru/"]]}]