Этажность
1
Спальни
5
Кровля
Плоская
Габариты
15,1 х 17,15
1.185.2019-А007
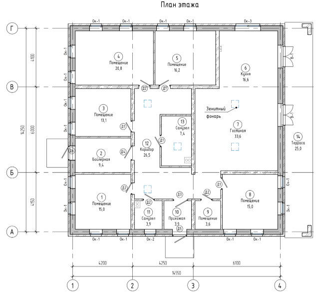
Описание проекта

· Площадь застройки: 262,0 м2
· Общая площадь здания (сумма площадей помещений): 184,9 м2
· Общая площадь здания включая площадь террас и крылец: 209,9 м2
· Площадь кровли здания (без навесов): 217.0 м2
Объемно-планировочные решения
· Количество наземных этажей: 1
· Наличие подвала или цокольного этажа: нет
· Режим эксплуатации чердачного пространства: нет
· Габаритные размеры дома в плане: 15,1 х 17,15м
· Высота 1 этажа (от пола до потолка): 3,000 м
· Проектная нулевая отметка: уровень чистого пола 1-го этажа
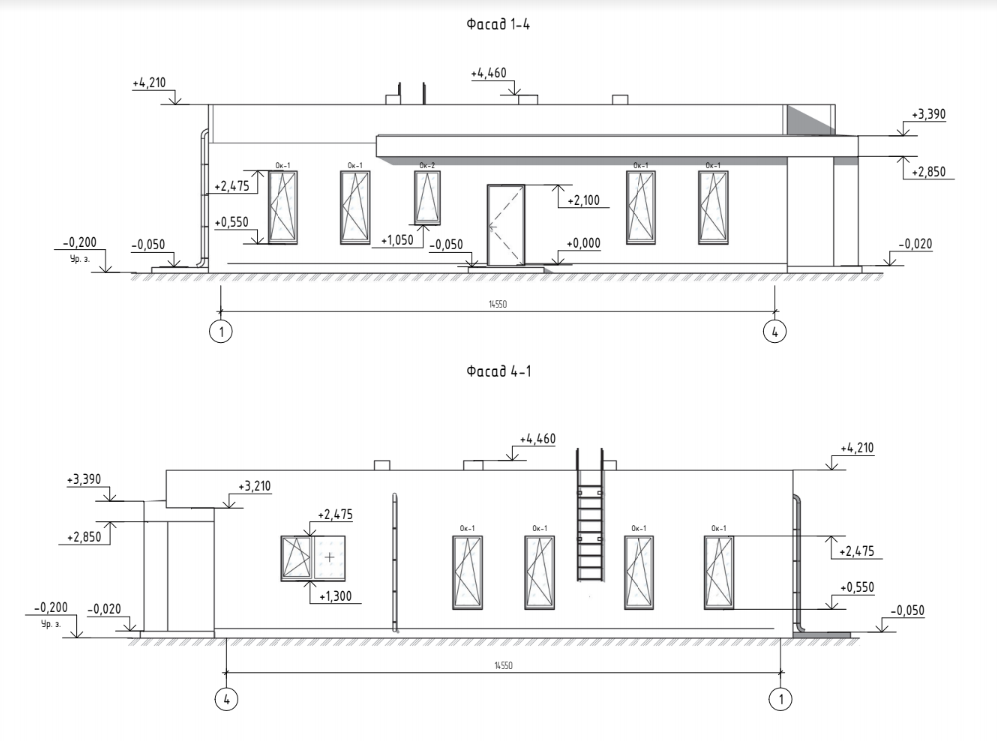
· Верхняя высотная отметка здания: +4,460 м
Конструктивные решения:
• Состав наружных стен (по направлению к внешнему слою) тип 1:
1. Кладка из газобетонных блоков (ДхШхВ) 625х350х250 мм, не выше D350, не ниже В2,0 по ГОСТ 31360-2007;
2. Воздушный зазор 30мм;
3. Кирпич полнотелый КР-л-по 250×120×65/1НФ/100/2,0/50/ГОСТ 530-2012;
· Внутренние несущие стены: 250 мм, крупноформатных силикатных блоков марки Камень СКРПу-М150/F35/1,8 ГОСТ 379-2015 (ДхШхВ)
498X250X248 мм;
· Внутренние перегородки: 115 мм, из силикатных пазогребневых перегородочных плит (ДхШхВ) 498х115х250 мм.
· Вид фундамента: Ленточный
· Перекрытие над 1-м этажом: сборно-монолитное перекрытие
· Конструкция кровли: плоская совмещенная

Район строительства: Московская область
• Расчетная зимняя температура наиболее холодной пятидневки, об. 0,92 (СП 131.13330.2018): минус 25 °С
• Расчетная внутренняя температура воздуха: 22 °С
• Градусо-сутки отопительного периода, ГСОП (СП 131.13330.2018 и СП 50.13330.2012): 4960 °С*сут/год
• Снеговой район, Нормативное значение веса снегового покрова на 1 м2 горизонтальной поверхности земли (карты Приложения Ж СП 20.13330.2016): 3-й район, 150 кгс/м2 (1,5кПа)

• Сейсмичность района строительства по шкале MSK-64 (СП 14.13330.2018): менее 6 баллов
По всем интересующим вопросам, а также для получения подробной информации
свяжитесь с нами по телефону +7 985 905 07 92