Этажность
2
Спальни
5
Кровля
Плоская
Габариты
11,35х 8,4
2.148.2019-148
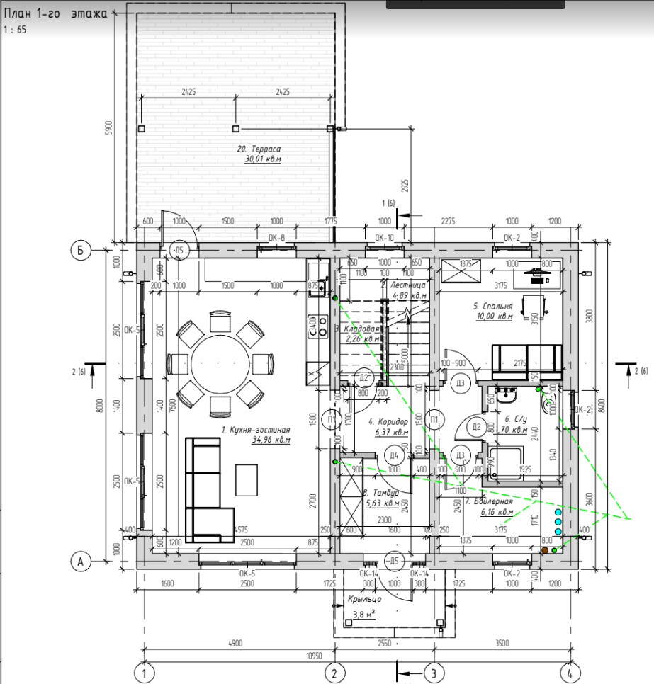
Описание проекта

· Площадь застройки: 99,2 м2
· Общая площадь здания (сумма площадей помещений): 148,6 м2
· Общая площадь здания включая площадь террас и крылец: 182,4 м2
· Площадь кровли здания (без навесов): 80,2 м2
Объемно-планировочные решения
· Количество наземных этажей: 2
· Наличие подвала или цокольного этажа: нет
· Режим эксплуатации чердачного пространства: холодный
· Габаритные размеры дома в плане: 11,35х 8,4 м
· Высота 1 этажа (от пола до потолка): 3,000 м
· Проектная нулевая отметка: уровень чистого пола 1-го этажа
· Верхняя высотная отметка здания:
+6,590 м
Конструктивные решения:
• Состав наружных стен (по направлению к внешнему слою):
1. 400 мм Кладка из газобетонных блоков (ДхВхШ) 600х250х400 мм, D300, не ниже В2 2. ~7 мм Тонкослойная фасадная штукатурка
· Внутренние несущие стены: 250 мм. Кладка из газобетонных блоков D500-600, не ниже В2,5
· Внутренние перегородоки: 150 мм. Кладка из газобетонных блоков D500-600
· Вид фундамента: малозаглубленная монолитная фундаментная плита
• Перекрытие над 1-м этажом: монолитная плита
· Конструкция кровли: монолитная плита

Район строительства: Ленинградская область
• Расчетная зимняя температура наиболее холодной пятидневки, об. 0,92 (СП 131.13330.2012): минус 24 °С
• Расчетная внутренняя температура воздуха: 22 °С
• Градусо-сутки отопительного периода, ГСОП (СП 131.13330.2012 и СП 50.13330.2012): 4500 °С*сут/год
• Снеговой район, снеговая нагрузка (карты Приложения Ж СП 20.13330.2016): 3-й район, 150 кгс/м2 (1,5 кПа)
• Сейсмичность района строительства по шкале MSK-64 (СП 14.13330.2018): 6 баллов
По всем интересующим вопросам, а также для получения подробной информации
свяжитесь с нами по телефону +7 985 905 07 92