Этажность
1
Спальни
1
Кровля
Скатная
Габариты
7,225 х 9
Баня 1.047.2020-021
Описание проекта

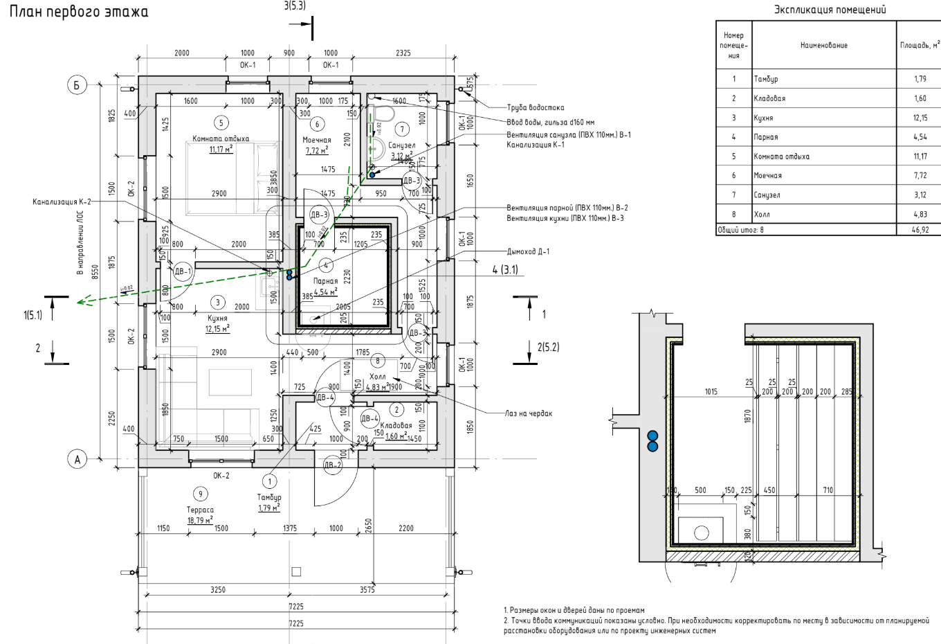
· Площадь застройки: 83,81 м2
· Общая площадь здания (сумма площадей помещений): 47,07 м2
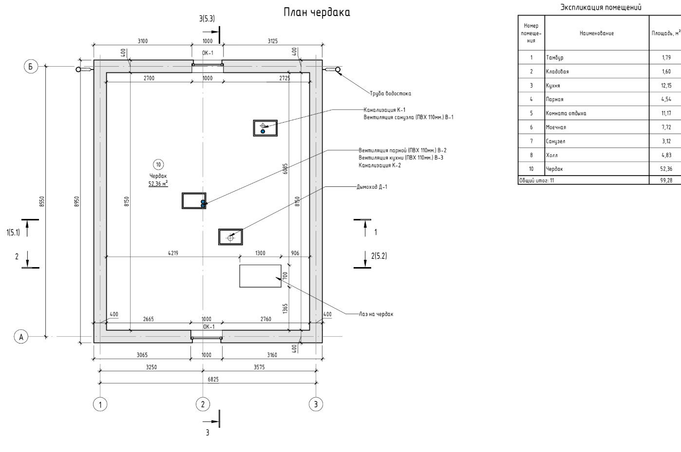
· Площадь кровли здания (без навесов): 95,09 м2 Объемно-планировочные решения
· Количество наземных этажей: 1
· Наличие подвала или цокольного этажа: нет
· Габаритные размеры дома в плане: 7,225 х 9 м
· Высота 1 этажа (от пола до потолка): 2,930 м
· Проектная нулевая отметка: уровень чистого пола 1-го этажа
· Верхняя высотная отметка здания: +7,083 м Конструктивные решения:
• Состав наружных стен (по направлению к внешнему слою):
400 мм Кладка из газобетонных блоков (ДхВхШ) 625х250х400 мм, D400, В2.5
· Внутренние несущих стены:
400 мм Кладка из газобетонных блоков (ДхВхШ) 625х250х300 мм, D400, В2.5
· Внутренние перегородоки:
150 мм Кладка из газобетонных блоков (ДхВхШ) 625х250х150 мм, D400, В2.5
· Вид фундамента: Малозаглубленный ленточный фундамент
· Перекрытие над первым этажом: Перекрытие по деревянным балкам
· Конструкция кровли: двускатная

• Район строительства: Хабаровский край
• Расчетная зимняя температура наиболее холодной пятидневки, об. 0,92 (СП 131.13330.2018): минус 29 °С
• Расчетная внутренняя температура воздуха: 22 °С
• Градусо-сутки отопительного периода, ГСОП (СП 131.13330.2018 и СП 50.13330.2012): 6047.5°С*сут/год
• Снеговой район, снеговая нагрузка (карты Приложения Ж СП 20.13330.2016): 2-й район, 100 кгс/м2 (1 кПа)
• Сейсмичность района строительства по шкале MSK-64 (СП 14.13330.2018): 6 баллов


Дополнительные помещения
По всем интересующим вопросам, а также для получения подробной информации
свяжитесь с нами по телефону +7 985 905 07 92