Этажность
2
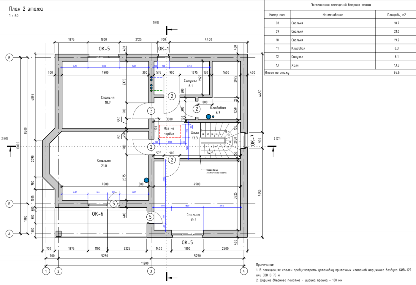
Спальни
4
Кровля
Скатная
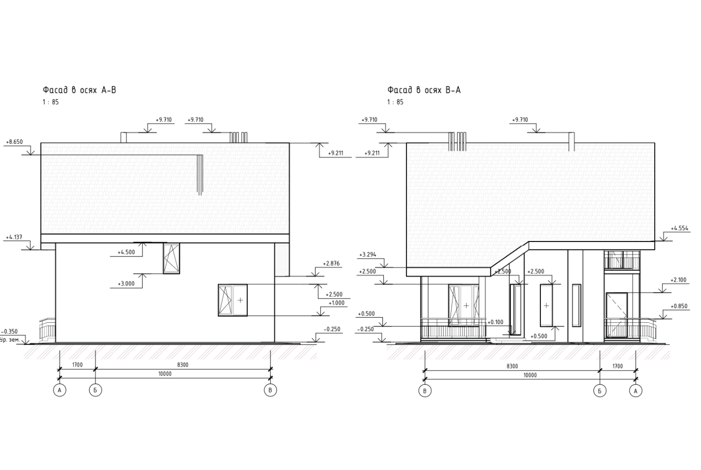
Габариты
11,6 х 10,4
2.167.2019-242
Описание проекта

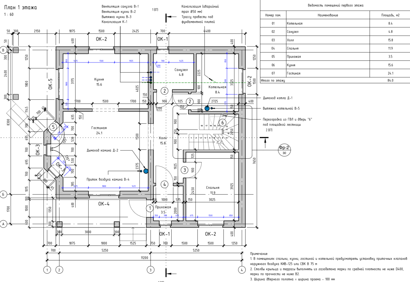
Общая площадь 167,1 м
2, в т.ч.
• 1 этаж 84.3 м
2
• 2 этаж 82,8 м2
Объемно-планировочные решения
Количество наземных этажей - 2
Наличие подвала - нет
Габаритные размеры здания в плане - 11,6 х 10,4 м
Высота 1 этажа - 3 м
Высота 2 этажа - 3 м
Высота здания - 9.7 м
Конструктивные решения
1. Фундамент - Монолитная плита.
2. Перекрытие над 1 этажом - Монолитное.
3. Материалы наружных стен
• Блоки из автоклавного газобетона (D400, B2) по ГОСТ 31360-2007;
• Тонкослойная штукатурка
4. Материалы внутренних несущих стен
• Блоки из автоклавного газобетона (D400, B2) по ГОСТ 31360-2007
5. Материалы внутренних ненесущих стен (перегородок)
• Блоки из автоклавного газобетона по ГОСТ 31360-2007 марки по плотности D500 или выше (для
повышения звукоизоляции возможна замена на кладку из силикатного или керамического
кирпича 120 мм, силикатные перегородочные плиты толщиной 70 или 80 мм).

6. Конструкция крыши - двускатная, частично теплоизолированна.
7. Конструктивная система - здание с несущими стенами из автоклавного газобетона.
По всем интересующим вопросам, а также для получения подробной информации
свяжитесь с нами по телефону +7 985 905 07 92