Этажность
2
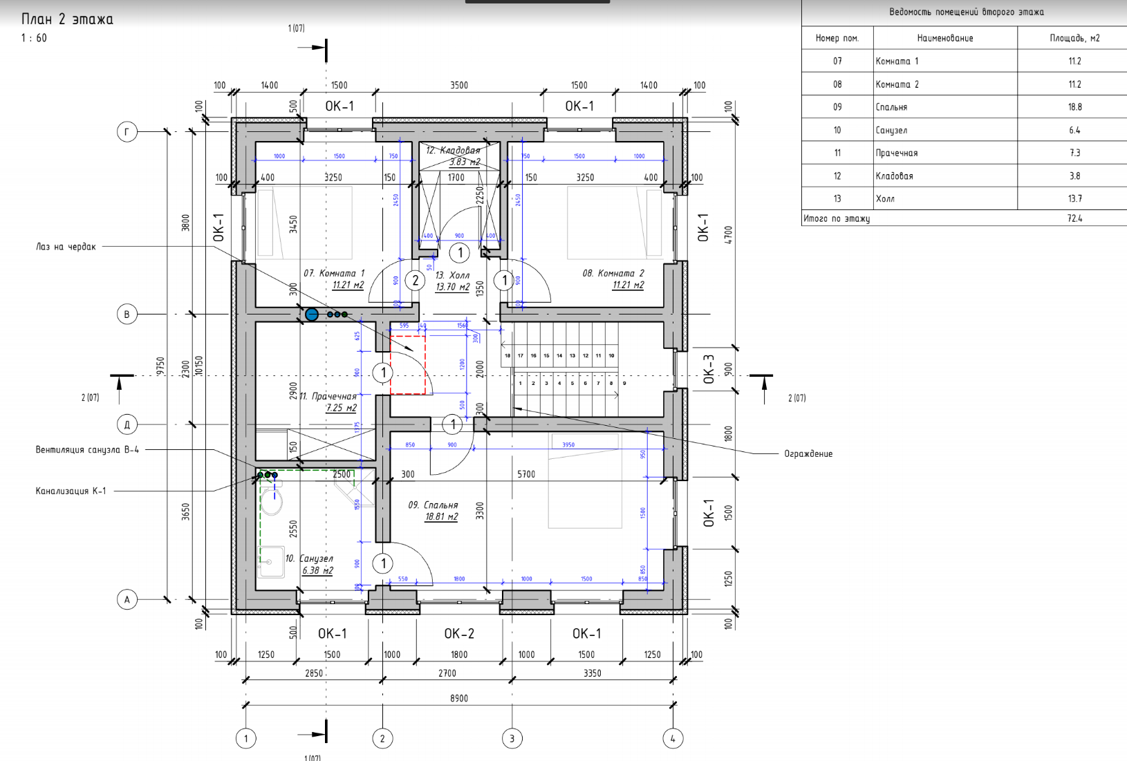
Спальни
4
Кровля
Скатная
Габариты
10,15 х 9,3
2.148.2019-007

Описание проекта

· Площадь застройки: 95 м2
· Общая площадь здания (сумма площадей помещений): 148 м2
· Площадь кровли здания (без навесов): 137 м2

3. Объемно-планировочные решения
· Количество наземных этажей: 2
· Наличие подвала: нет
· Режим эксплуатации чердачного пространства: холодный
· Габаритные размеры дома и гаража в плане: 10,15х9,3 м
· Высота 1 этажа (от пола до потолка): 2,98 м
• Высота 2 этажа (от пола до потолка): 2,92 м
· Проектная нулевая отметка: уровень чистого пола 1-го этажа
· Высота здания (самая высокая точка здания): +8,800 м
4. Конструктивные решения:
· Материал наружных несущих стен:
1 слой - кладка из газобетонных блоков размерами 625х400х250 мм /D400 /В2 (не ниже) ГОСТ 31360-2007 на белом растворе для
тонкошовной кладки (или ППУ-клее для кладки).
2 слой - ППС 16Ф - 100 мм. Утеплитель монтировать через 1-2 года после запуска постоянно функционирующих систем отопления и
вентиляции, а также проведения работ по внутренней отделке помещений, включающих "мокрые" процессы. Влажность утепляемой
кладки должна составлять не более 8% по объему в среднем по толщине стены.
3 слой - штукатурка 5-20 мм (в проекте условно не показана)
· Материал внутренних несущих стен дома:
кладка из газобетонных блоков размерами 625х300х250 мм /D600 ГОСТ 31360-2007 на растворе для тонкошовной кладки (или ППУ-клее
для кладки)
· Материал внутренних перегородок дома:
кладка из газобетонных блоков размерами 625х150х250 мм /D600 ГОСТ 31360-2007 на растворе для тонкошовной кладки (или ППУ-клее для
кладки)
· Вид фундамента дома: утепленная шведская плита.
· Перекрытие 1 этажа: монолитное железобетонное
· Перекрытие 2 этажа: монолитное железобетонное, утепляется минераловатными плитами (например ROCKWOOL ЛАЙТ БАТТС), в
качестве пароизоляции использовать полиэтиленовую пленку 140 гр/м 2 (толщиной 200 мкм) по ГОСТ 10354-82.
· Конструкция кровли: вальмовая.

Московская область
Расчетная зимняя температура наиболее холодной пятидневки -25 °С (об. 0,92) по СП 131.13330.2012;
3. Карты Приложения Ж СП 20.13330.2011 - III снег. район, снег. нагрузка -180 кгс/м2 (1.8кПа);
4. Сейсмичность района строительства 6 баллов по шкале MSK-64. (СП 14.13330.2014)
• На период строительства здания предусмотреть мероприятия по защите грунтов основания от замачивания и промерзания (СП 45.13330.2012).
• Под подошвой фундамента выполнить подушку из уплотненной песчано-гравийной смеси с послойным уплотнением с коэффициентом уплотнения k=0,95-0,98.
• Обратную засыпку пазух котлована выполнять талым непучинистыи грунтом с тщательным послойным уплотнением слоями не более 15-20 см.
По всем интересующим вопросам, а также для получения подробной информации
свяжитесь с нами по телефону +7 985 905 07 92