Этажность
4
Спальни
2
Кровля
Скатная
Габариты
12,08 х11,16
2.202.2019-022
Описание проекта

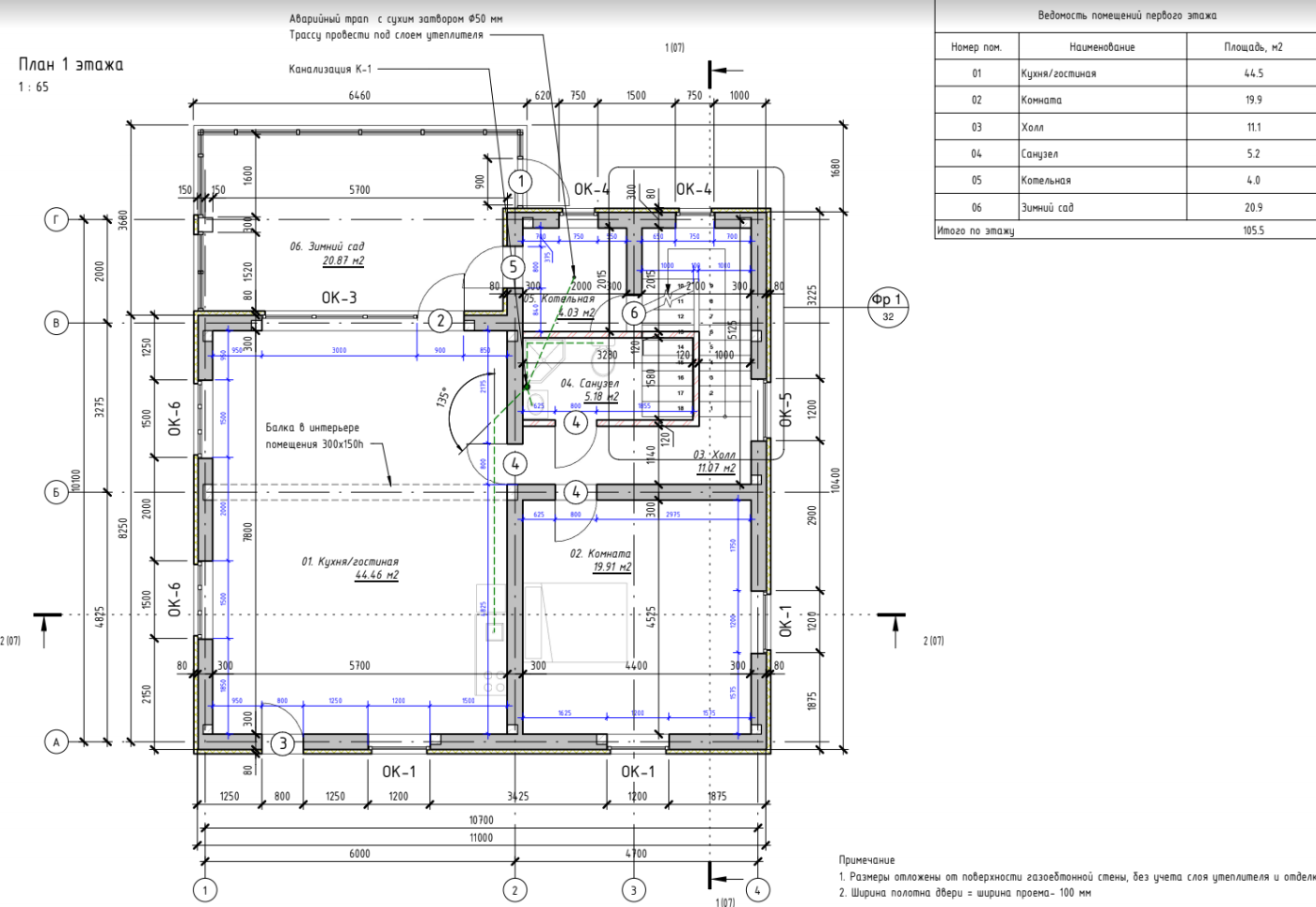
· Площадь застройки: 153.5 м2
· Общая площадь здания (сумма площадей помещений): 202.7 м2
· Площадь кровли здания (без навесов): 144.6 м2
3. Объемно-планировочные решения
· Количество наземных этажей: 2
· Наличие подвала: нет
· Режим эксплуатации чердачного пространства: Холодный
· Габаритные размеры дома в плане: 12,08х11,16 м
· Высота 1 этажа (от пола до потолка): 2.78 м
· Высота 2 этажа (от пола до потолка): 2.865 м
· Проектная нулевая отметка: уровень чистого пола 1-го этажа
· Высота здания (самая высокая точка здания): +8,180 м
4. Конструктивные решения:
· Материал наружных несущих стен:
1 слой - кладка из газобетонных блоков размерами 625х300х250 мм /D400 /В2.5 (не ниже) ГОСТ 31360-2007 на клеевом растворе для
тонкошовной кладки, усиленная монолитными железобетонными сердечниками.
2 слой - минеральная плита плотностью не ниже 100 кг/м3
3 слой - штукатурка толщиной 5-20 мм (в проекте условно не показана).
· Материал внутренних несущих стен дома:
кладка из газобетонных блоков размерами 625х300х250 мм /D400 /В2.5 (не ниже) ГОСТ 31360-2007 на клеевом растворе для тонкошовной
кладки, усиленная монолитными железобетонными сердечниками.
· Материал внутренних перегородок дома:
кладка из кирпича рядового полнотелого размерами 250х120х65/М100 ГОСТ 530-2012 на цементно-песчаном растворе М100 с обеспечением
нормального сцепления кладки не ниже II категории (не менее 120 кПа).
· Вид фундамента дома: монолитный ленточный с утепленным полом по грунту.
· Перекрытие 1 этажа: монолитное железобетонное.
· Перекрытие 2 этажа: по деревянным балкам. Утепляется минераловатными плитами , в качестве пароизоляции использовать полиэтиленовую пленку 140 гр/м2 (толщиной 200 мкм) по ГОСТ 10354-82.
· Конструкция кровли: четырехскатная холодная. Частично утеплена над помещениями 09 и 10.

• Характеристика места строительства:
1. Краснодарский край, Анапский район,
2. Расчетная зимняя температура наиболее холодной пятидневки -14 °С (об. 0,92) по СП 131.13330.2012;
3. Карты Приложения Ж СП 20.13330.2016- II снег. район, снег. нагрузка -100 кгс/м2 (1.0кПа);
4. Сейсмичность района строительства 8 баллов по шкале MSK-64. (СП 14.13330.2018)
• На период строительства здания предусмотреть мероприятия по защите грунтов основания от замачивания и промерзания (СП45.13330.2012).
По всем интересующим вопросам, а также для получения подробной информации
свяжитесь с нами по телефону +7 985 905 07 92