Этажность
1
Спальни
3
Кровля
Скатная
Габариты
10х12,15
1.097.2019-041
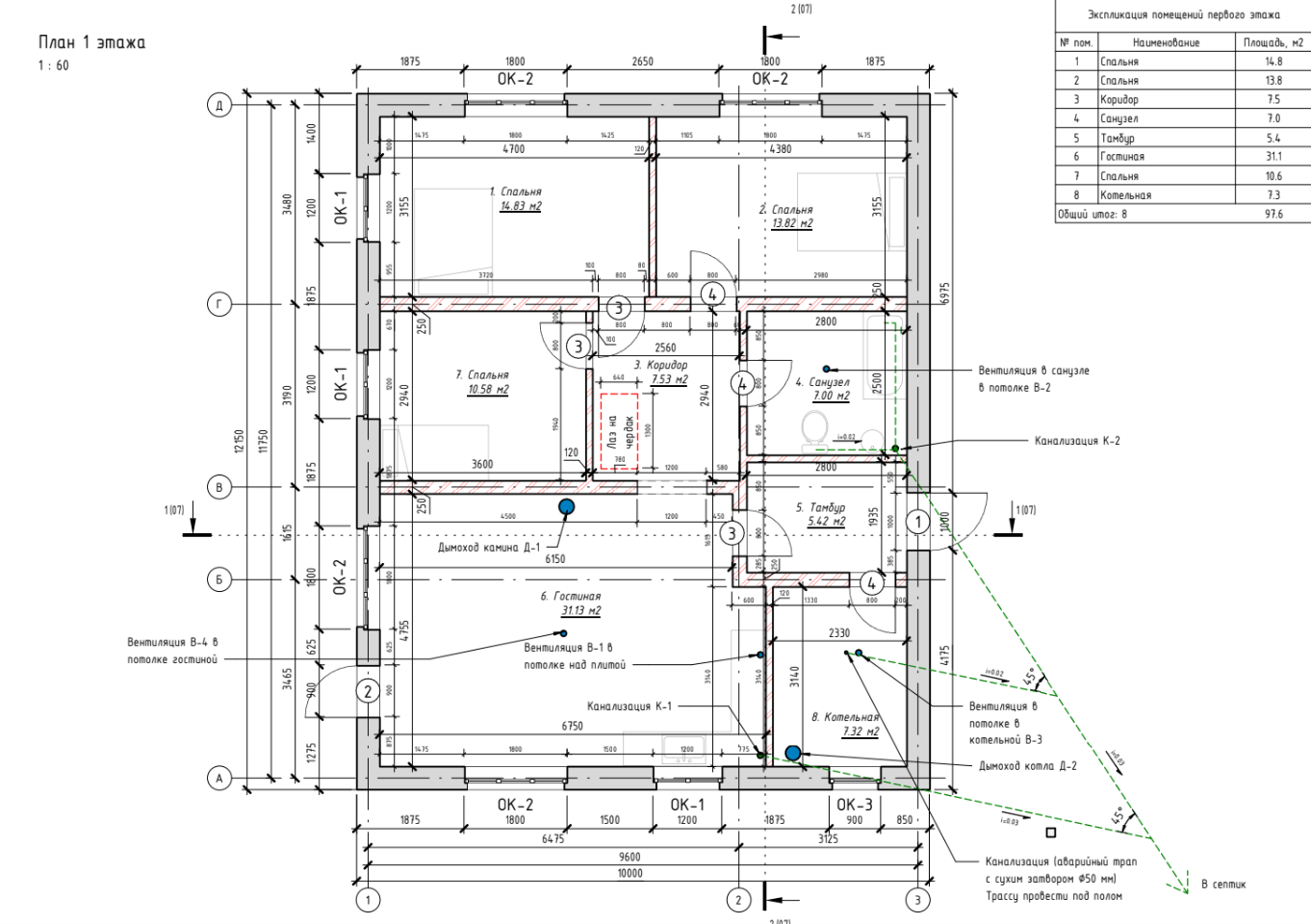
Описание проекта

· Площадь застройки: 210,1 м2
· Общая площадь здания (сумма площадей помещений без террасы): 97,6 м2
· Площадь кровли здания (без навесов): 281,6 м2

Объемно-планировочные решения
· Количество наземных этажей: 1
· Наличие подвала: нет
· Режим эксплуатации чердачного пространства: холодный
· Габаритные размеры дома и гаража в плане (без террасы): 10х12,15 м
· Высота 1 этажа (от пола до потолка): 2,93 м
· Проектная нулевая отметка: уровень чистого пола 1-го этажа
· Высота здания (самая высокая точка здания): +6,694м
4. Конструктивные решения:
· Материал наружных несущих стен:
1 слой - кладка из газобетонных блоков размерами 625х400х250 мм /D400 /В2 (не ниже) ГОСТ 31360-2007 на клеевом растворе для
тонкошовной кладки (или ППУ-клее для кладки).
2 слой - штукатурка толщиной 5-20 мм
· Материал внутренних несущих стен дома:
кладка из полнотелого глинянного кирпича размерами 250х120х65 по ГОСТ 530-2012 на кладочном растворе М100
· Материал внутренних перегородок дома:
кладка из полнотелого глинянного кирпича размерами 250х120х65 по ГОСТ 530-2012 на кладочном растворе М100
· Вид фундамента дома: ленточный с утепленным полом по грунту.
· Перекрытие 1 этажа: по деревянны балкам, утепляется минераловатными плитами (например ROCKWOOL ЛАЙТ БАТТС), в качестве пароизоляции использовать полиэтиленовую пленку 140 гр/м 2 (толщиной 200 мкм) по ГОСТ 10354-82.
· Конструкция кровли: двускатная.

Характеристика места строительства:
1. Московская область
2. Расчетная зимняя температура наиболее холодной пятидневки -25 °С (об. 0,92) по СП 131.13330.2012;
3. Карты Приложения Ж СП 20.13330.2011 - III снег. район, снег. нагрузка -150 кгс/м2 (1.8кПа);
4. Сейсмичность района строительства 6 баллов по шкале MSK-64. (СП 14.13330.2014)
По всем интересующим вопросам, а также для получения подробной информации
свяжитесь с нами по телефону +7 985 905 07 92