Этажность
1
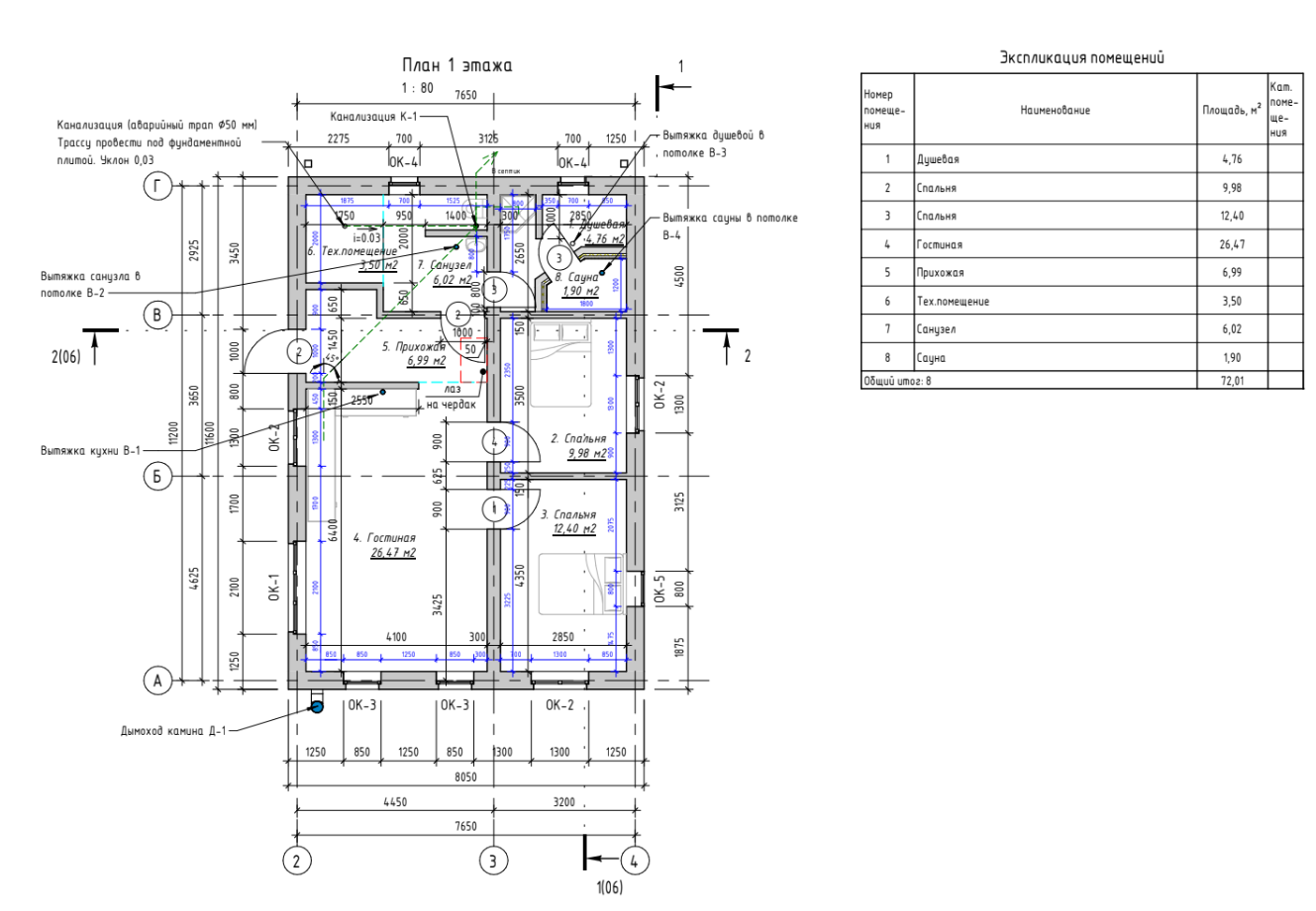
Спальни
2
Кровля
Скатная
Габариты
8,05 х 11,6
1.073.2019-054
Описание проекта

· Площадь застройки: 130 м2
· Общая площадь здания (сумма площадей помещений): 73 м2
· Площадь кровли здания (без навесов): 139,4 м2
3. Объемно-планировочные решения
· Количество наземных этажей: 1
· Наличие подвала: нет
· Режим эксплуатации чердачного пространства: холодный,
· Габаритные размеры дома в плане: 8,05 х11,6 м
· Высота 1 этажа (от пола до потолка): 3 м
· Проектная нулевая отметка: уровень чистого пола 1-го этажа
· Высота здания (самая высокая точка здания): +5,42 м
4. Конструктивные решения:
· Материал наружных несущих стен:
1 слой: кладка из газобетонных блоков размерами 625х400х250 мм /D400 /В2 (не ниже) ГОСТ 31360-2007 на клей-пене.
2 слой: Навесная фасадная система с панелями из фиброцемента
· Материал внутренних несущих стен дома:
кладка из газобетонных блоков размерами 625х300х250 мм /D600/В2 (не ниже) ГОСТ 31360-2007 на клей-пене или на тонкошовном
цементном растворе для кладки
· Материал внутренних перегородок дома:
кладка из газобетонных блоков размерами 625х150х250 мм /D600 /В2 (не ниже) ГОСТ 31360-2007 на клей-пене или на тонкошовном
цементном растворе для кладки
· Вид фундамента дома: утепленная шведская плита (УШП).
· Перекрытие 1 этажа: по деревянным балкам. Утепляется минераловатными плитами , в качестве пароизоляции использовать полиэтиленовую пленку 140 гр/м2 (толщиной 200 мкм) по ГОСТ 10354-82.
· Конструкция кровли: двускатная.

Самарская область
2. Расчетная зимняя температура наиболее холодной пятидневки -30°С (об. 0,92) по СП 131.13330.2012;
3. Карты Приложения Ж СП 20.13330.2016 - IV снег. район, снег. нагрузка -200 кгс/м2 (2кПа);
По всем интересующим вопросам, а также для получения подробной информации
свяжитесь с нами по телефону +7 985 905 07 92