Этажность
6
Спальни
6
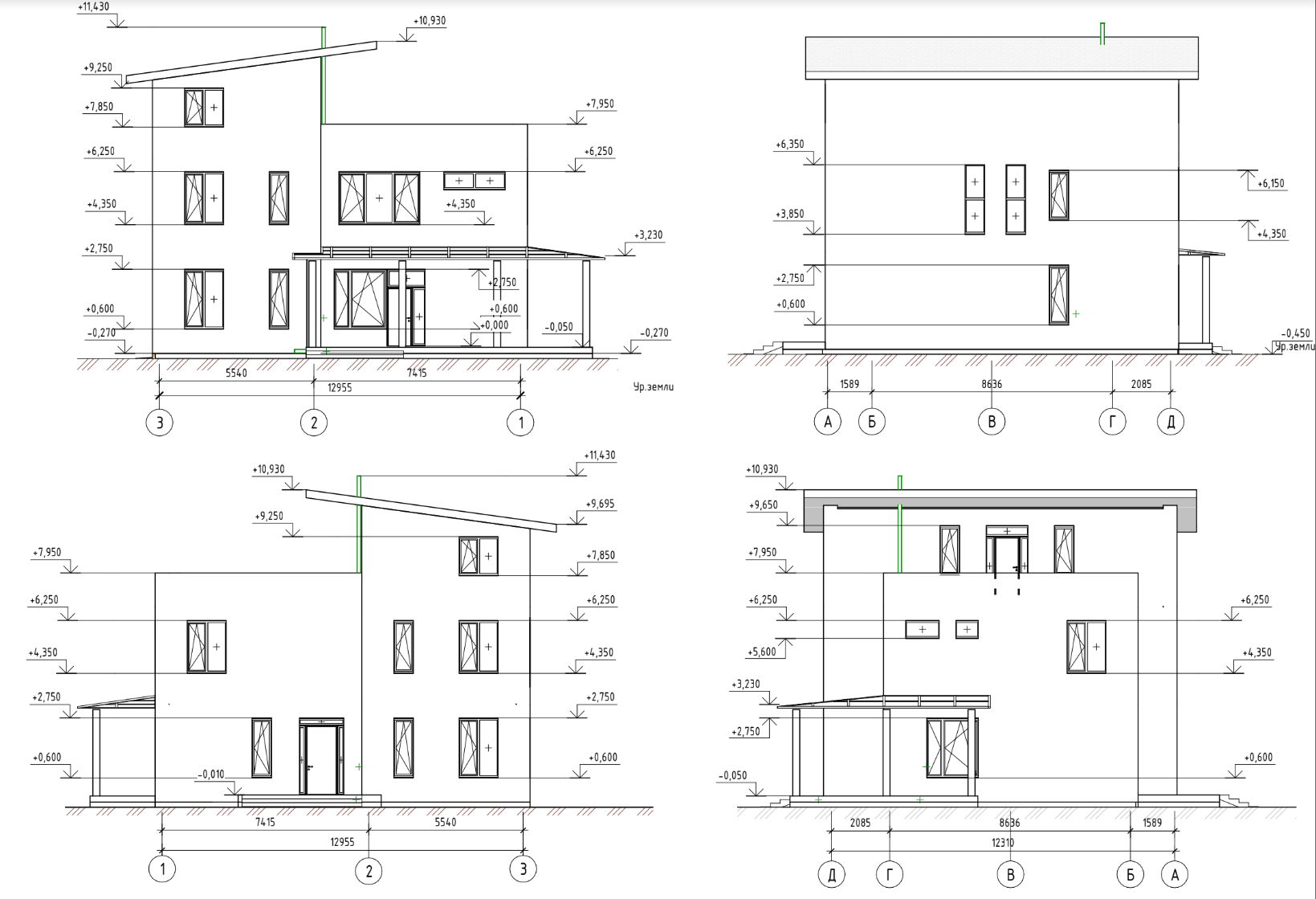
Кровля
скатная плоская




Габариты
13,46 х 12,74
3.265.2019-062
Описание проекта

· Площадь застройки: 182 м2
· Общая площадь здания (сумма площадей помещений без террасы): 265.8 м2
· Площадь кровли здания (без навесов): 123,5 м2
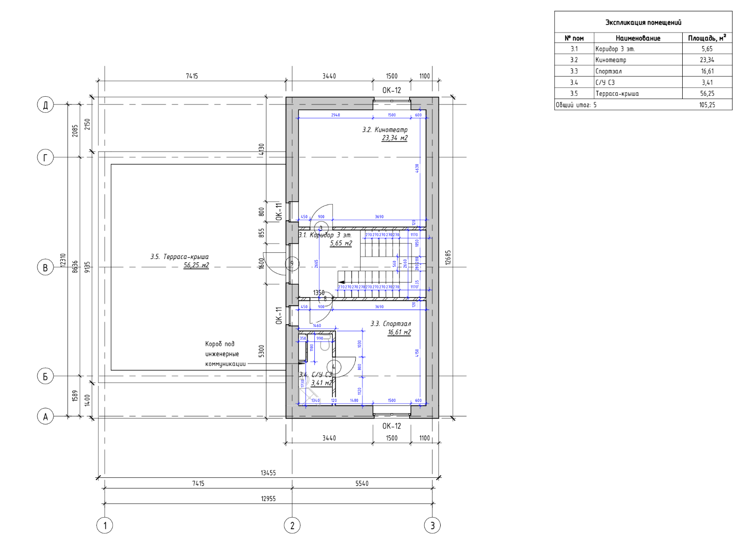
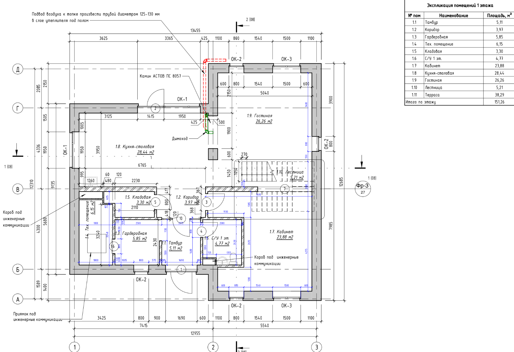
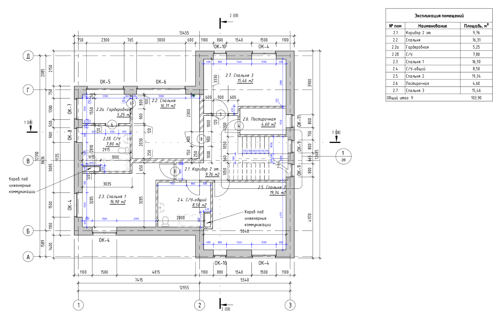
3. Объемно-планировочные решения
· Количество наземных этажей: 3
· Наличие подвала: нет
· Режим эксплуатации чердачного пространства: нет
· Габаритные размеры дома в плане: 13,46х12,74 м
· Высота 1 этажа (от пола до потолка): 3,25 м
• Высота 2 этажа (от пола до потолка): 2,85 м
• Высота 3 этажа (от пола до потолка): 2.31-2,8 м
· Проектная нулевая отметка: уровень чистого пола 1-го этажа
· Высота здания (самая высокая точка здания): +10,930 м
4. Конструктивные решения:
· Материал наружных несущих стен:
кладка из газобетонных блоков размерами 625х500х250 мм /D400 /В2 (не ниже) ГОСТ 31360-2007 на клей-пене.
· Материал внутренних несущих стен дома:
кладка из полнотелого глиняного обыкновенного кирпича 250х120х65 мм по ГОСТ 530-2012 на цементно-песчаном растворе М100·
Материал внутренних перегородок дома:
кладка из полнотелого глиняного обыкновенного кирпича 250х120х65 мм по ГОСТ 530-2012 на цементно-песчаном растворе М100
· Вид фундамента дома: железобетонная лента.
· Перекрытие 1 этажа: Перекрытие "МАРКО".
• Перекрытие 2 этажа: Перекрытие "МАРКО"
· Конструкция кровли: утеплённая кровля по деревянным стропилам, фальцевая. Односкатная.

Характеристика места строительства:
1. Московская область
2. Расчетная зимняя температура наиболее холодной пятидневки -28 °С (об. 0,92) по СП 131.13330.2012;
3. Карты Приложения Ж СП 20.13330.2016 - III снег. район, снег. нагрузка -150 кгс/м2 (1.5кПа);
По всем интересующим вопросам, а также для получения подробной информации
свяжитесь с нами по телефону +7 985 905 07 92