Этажность
1
Спальни
3
Кровля
Скатная
Габариты
10,8 х 12,5
1.107.2019-070
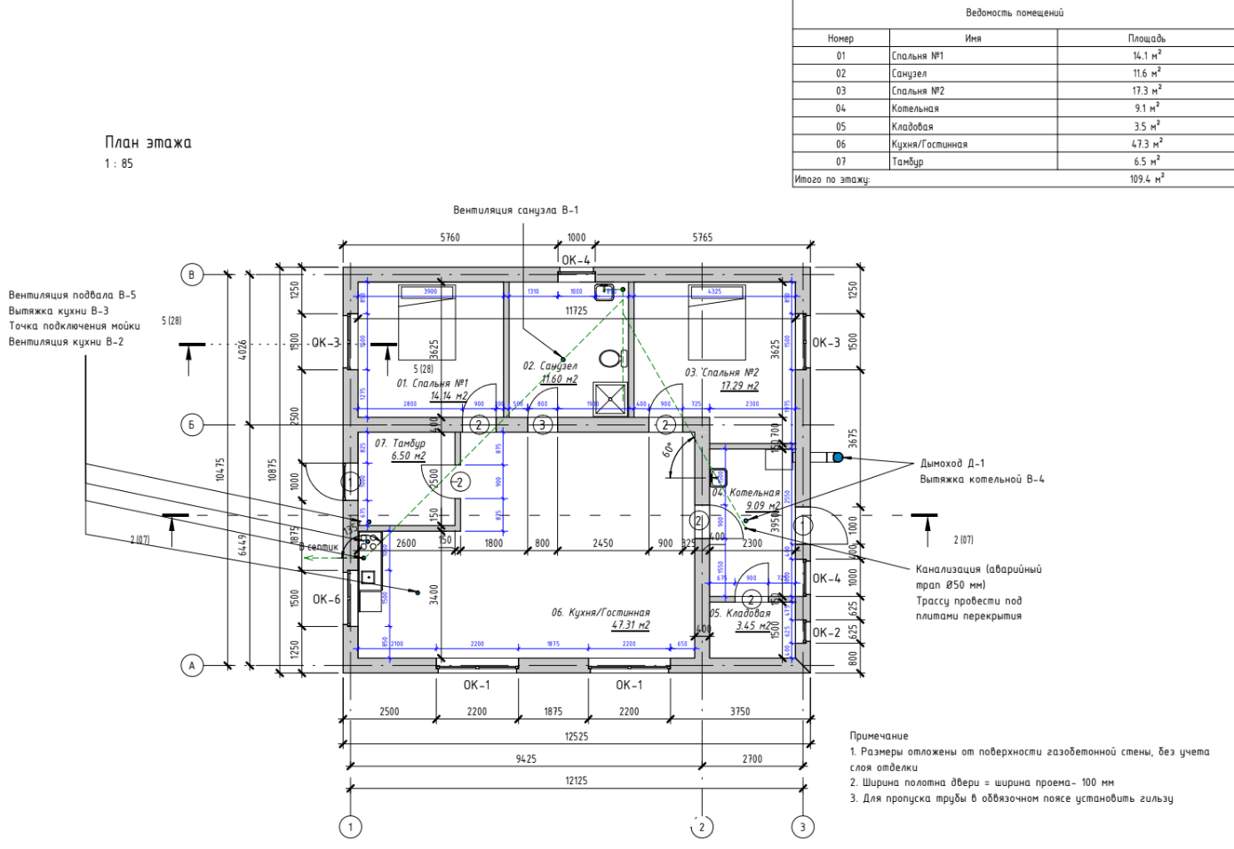
Описание проекта

· Общая площадь первого этажа: 107,3 м2
· Площадь кровли здания: 184.4 м2
Объемно-планировочные решения· Количество наземных этажей: 1
· Наличие подвала: да
· Режим эксплуатации чердачного пространства: Холодный
· Габаритные размеры дома и гаража в плане: 10,875 х 12,525 м
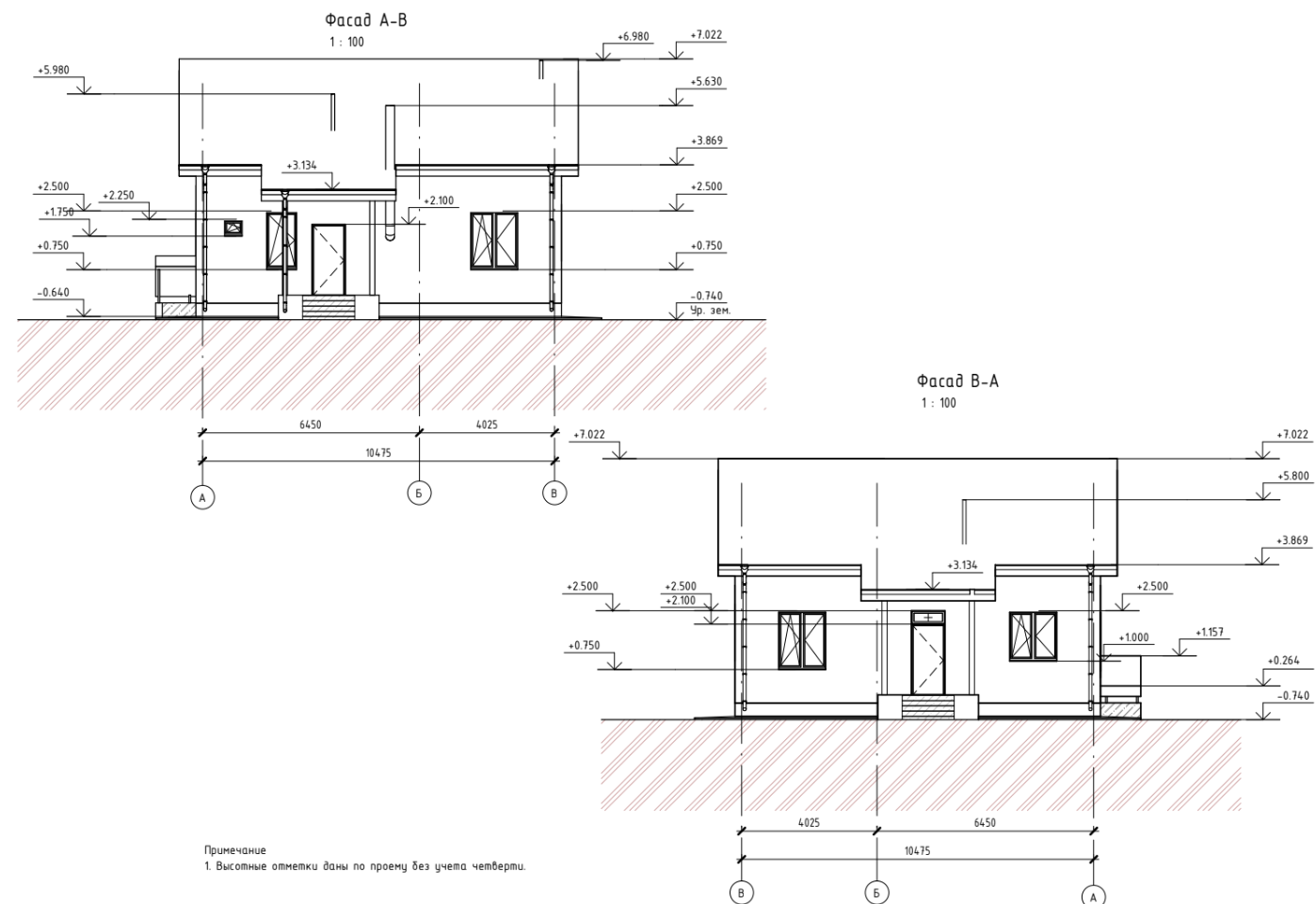
· Высота 1 этажа (от пола до потолка): 2.950 м
· Высота чердака (от перекрытия до конька крыши): 3.343 м
· Проектная нулевая отметка: уровень чистого пола 1-го этажа
· Высота здания (самая высокая точка здания): +7,022 м
Конструктивные решения:
· Материал наружных несущих стен:
1 слой - кладка из газобетонных блоков размерами 625х400х250 мм /D400 /В2.5 ГОСТ 31360-2007 на клеевом растворе для тонкошовной кладки.
2 слой - Тонкослойная штукатурка
· Материал внутренних несущих стен дома:
кладка из газобетонных блоков размерами 625х400х250 мм /D400 /В2.5 ГОСТ 31360-2007 на клеевом растворе для тонкошовной кладки.
· Материал внутренних перегородок дома:
кладка из газобетонных блоков размерами 625х150х250 мм /D600 /В3.5 ГОСТ 31360-2007 на клеевом растворе для тонкошовной кладки.
· Вид фундамента дома: Существующий: Фундамент из ФБС Проектируемый: монолитный ленточный.
· Перекрытие 1 этажа: монолитное железобетонное.
· Перекрытие над этажом: по деревянным балкам с теплоизоляцией минераловатными плитами.
· Конструкция кровли: двухскатная.

Челябинская область
Расчетная зимняя температура наиболее холодной пятидневки -34 °С (об. 0,92) по СП 131.13330.2012;
Карты Приложения Ж СП 20.13330.2016- III снег. район, снег. нагрузка -150 кгс/м2 (1.0кПа);
Сейсмичность района строительства менее 6 баллов по шкале MSK-64. (СП 14.13330.2018)
• На период строительства здания предусмотреть мероприятия по защите грунтов основания от замачивания и промерзания (СП 45.13330.2012).
• Под подошвой фундамента выполнить подушку из уплотненной песчано-гравийной смеси с послойным уплотнением с коэффициентом уплотнения k=0,95-0,98.
• Обратную засыпку пазух котлована выполнять талым непучинистым грунтом с тщательным послойным уплотнением слоями не более 15-20см.