Этажность
2
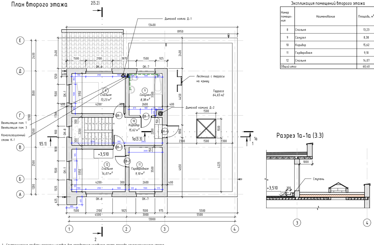
Спальни
3
Кровля
Скатная
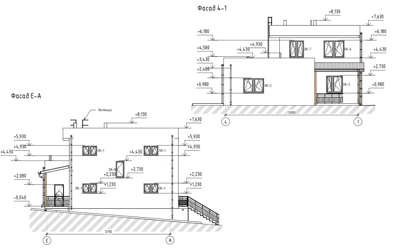
Габариты
11,0 х 7,3
2.133.2019-088

Описание проекта

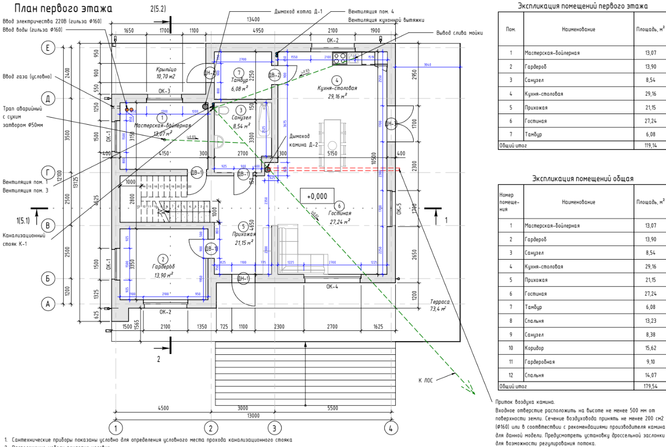
· Площадь застройки: 80,3 м2
· Общая площадь здания (сумма площадей помещений): 133,5 м2
· Площадь кровли здания (без навесов): 113 м2
3. Объемно-планировочные решения
· Количество наземных этажей: 2
· Наличие подвала: нет
· Режим эксплуатации чердачного пространства: без чердака
· Габаритные размеры дома и гаража в плане: 11х7,3 м
· Высота 1 этажа (от пола до потолка): 2.620 м
· Высота 2 этажа (от пола до потолка): 3,574 м
· Проектная нулевая отметка: уровень чистого пола 1-го этажа
· Высота здания (самая высокая точка здания): +6,976 м
4. Конструктивные решения:
· Материал наружных несущих стен:
1 слой - кладка из газобетонных блоков размерами 600х300х250 мм /D350 /В2 (не ниже) ГОСТ 31360-2007 на клеевом растворе для
тонкошовной кладки (или клей-пене).
· Материал внутренних несущих стен дома:
кладка из газобетонных блоков размерами 625х300х250 мм /D500 (не ниже) /В2.5 (не ниже) ГОСТ 31360-2007 на клеевом растворе для
тонкошовной кладки (или клей-пене).
· Материал внутренних перегородок дома:
кладка из газобетонных блоков размерами 625х150х250 мм /D500 (не ниже) /В2.5 (не ниже) ГОСТ 31360-2007 на клеевом растворе для
тонкошовной кладки (или клей-пене).
· Вид фундамента дома: монолитный ленточный с утепленным полом по грунту.
· Перекрытие 1 этажа: по деревянным балкам, в качестве пароизоляции использовать полиэтиленовую пленку 140 гр/м2 (толщиной 200 мкм) по ГОСТ 10354-82.
· Конструкция кровли: двускатная утепленная.

Характеристика места строительства:
1. Тамбовская область
2. Расчетная зимняя температура наиболее холодной пятидневки -28 °С (об. 0,92) по СП 131.13330.2012;
3. Карты Приложения Ж СП 20.13330.2016- III снег. район, снег. нагрузка -150 кгс/м2 (1.5кПа);
4. Сейсмичность района строительства менее 6 баллов по шкале MSK-64. (СП 14.13330.2018)