Этажность
1
Спальни
4
Кровля
Скатная
Габариты
11,4 х 16,4
1.151.2019-096

Описание проекта

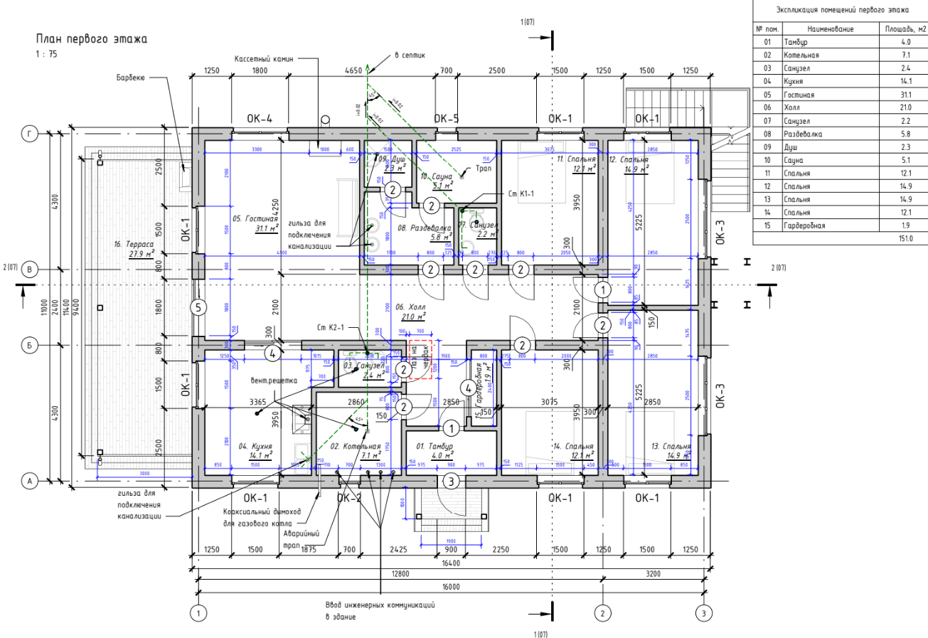
· Площадь застройки: 222.0 м2
· Общая площадь здания (сумма площадей помещений без террасы и мастерской): 151,0 м2
· Площадь кровли здания (без навесов): 242,9 м2
3. Объемно-планировочные решения
· Количество наземных этажей: 1
· Наличие подвала: нет
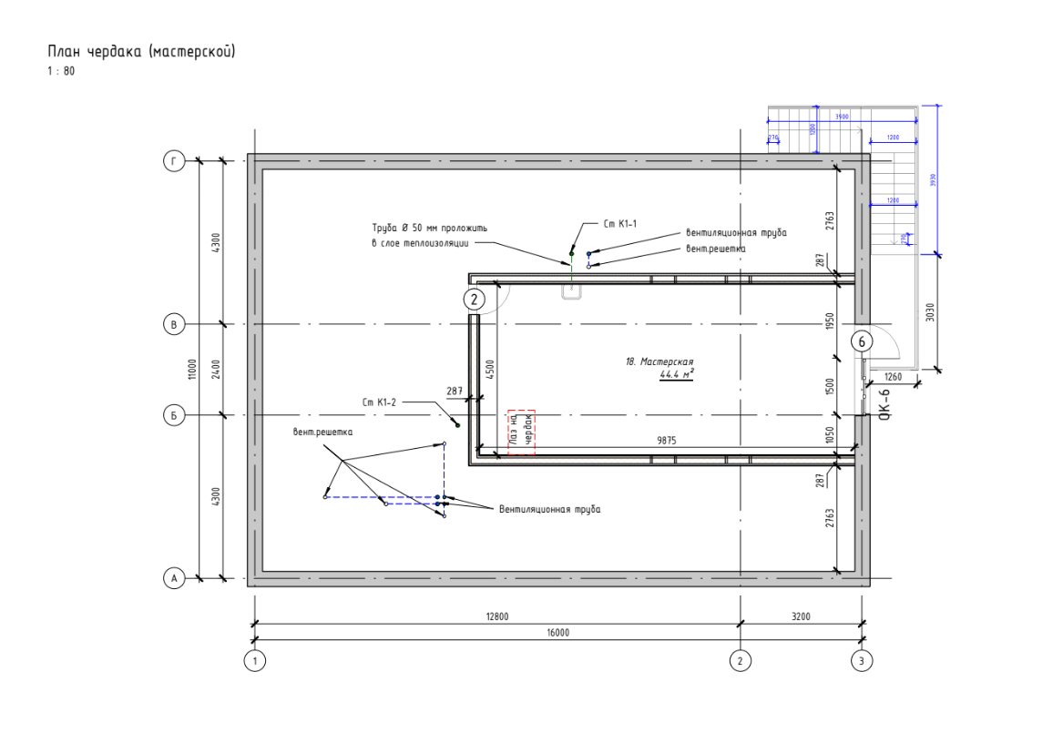
· Режим эксплуатации чердачного пространства: холодный и теплый (для мастерской)
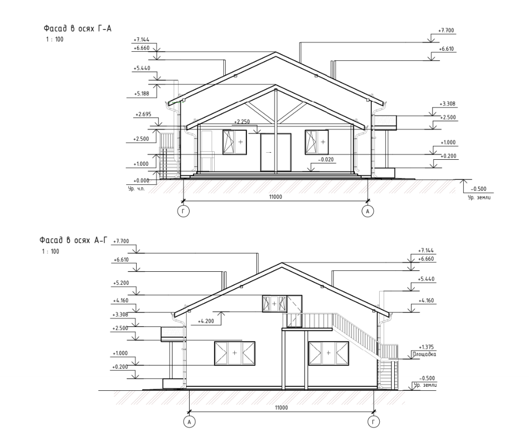
· Габаритные размеры дома в плане (без террасы): 11,4х16,4 м
· Высота 1 этажа (от пола до потолка): 3,00 м
• Высота 2 этажа, мастерской (от пола до потолка): 2,46 м
· Проектная нулевая отметка: уровень чистого пола 1-го этажа
· Высота здания (самая высокая точка здания): +7,14 м
4. Конструктивные решения:
· Материал наружных несущих стен:
1 слой - кладка из газобетонных блоков размерами 625х400х250 мм /D400 /В2 (не ниже) ГОСТ 31360-2007 на клеевом растворе для
тонкошовной кладки (или ППУ-клее для кладки).
· Материал внутренних несущих стен дома:
кладка из газобетонных блоков размерами 625х300х250 мм /D600 ГОСТ 31360-2007 на клеевом растворе для тонкошовной кладки (или
ППУ-клее для кладки).
· Материал внутренних перегородок дома:

кладка из газобетонных блоков размерами 625х150х250 мм /D600 ГОСТ 31360-2007 на клеевом растворе для тонкошовной кладки (или ППУ-
клее для кладки).

· Вид фундамента дома: плоская фундаментная монолитная плита.
· Перекрытие 1 этажа: Сборно-монолитное перекрытие Марко
· Конструкция кровли: двускатная холодная

Ленинградская область
Расчетная зимняя температура наиболее холодной пятидневки -25 °С (об. 0,92) по СП 131.13330.2012;
Карты Приложения Ж СП 20.13330.2016 - III снег. район, снег. нагрузка -150 кгс/м2 (1.5кПа);
Сейсмичность района строительства 6 баллов по шкале MSK-64. (СП 14.13330.2014)
По всем интересующим вопросам, а также для получения подробной информации
свяжитесь с нами по телефону +7 985 905 07 92