Этажность
2
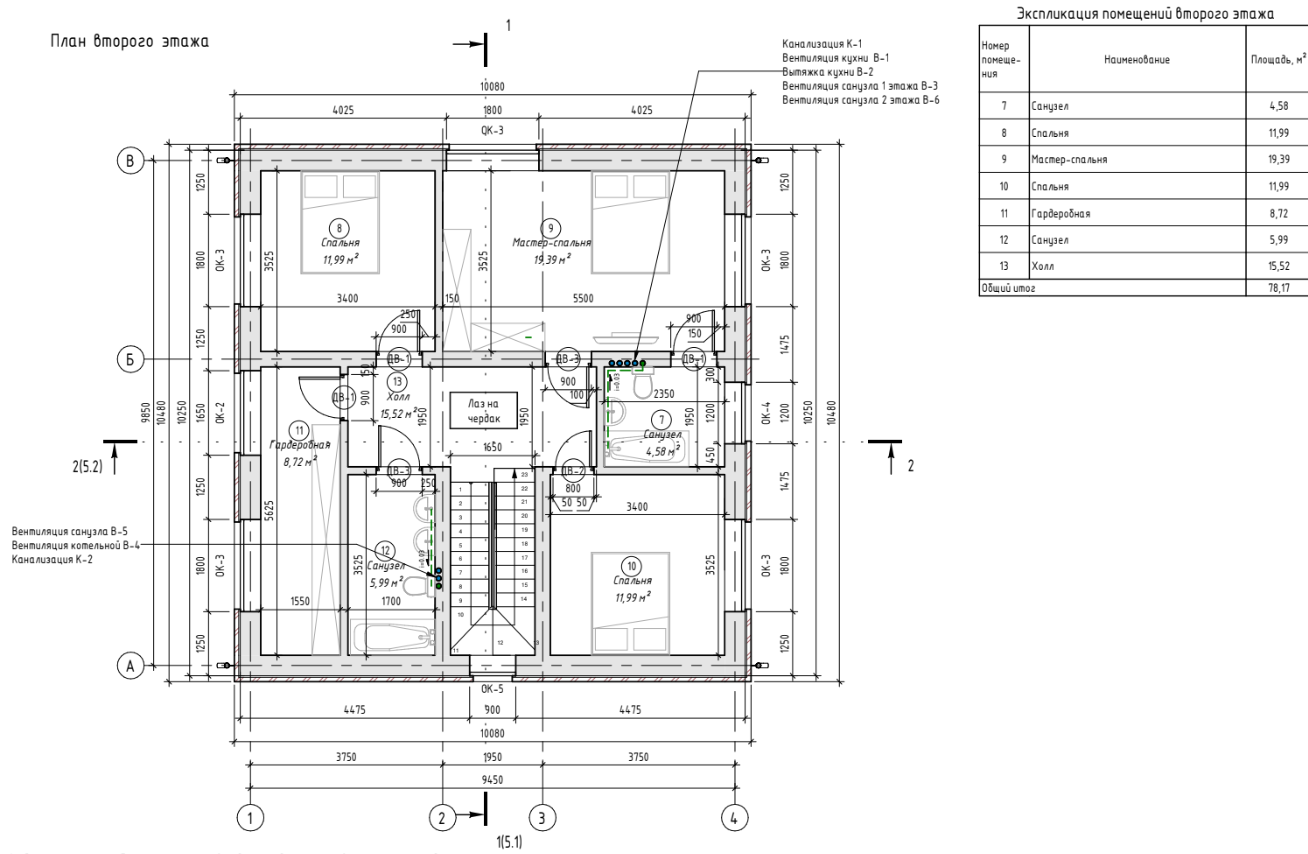
Спальни
4
Кровля
Скатная
Габариты
10,08 х 10,48
2.157.2019-120
Описание проекта

• Площадь застройки: 150,51 м2
• Общая площадь здания (сумма площадей помещений): 157,08 м2
• Общая площадь здания включая площадь террас и крылец: 159,44 м2
• Площадь кровли здания (без навеса): 217,82 м2
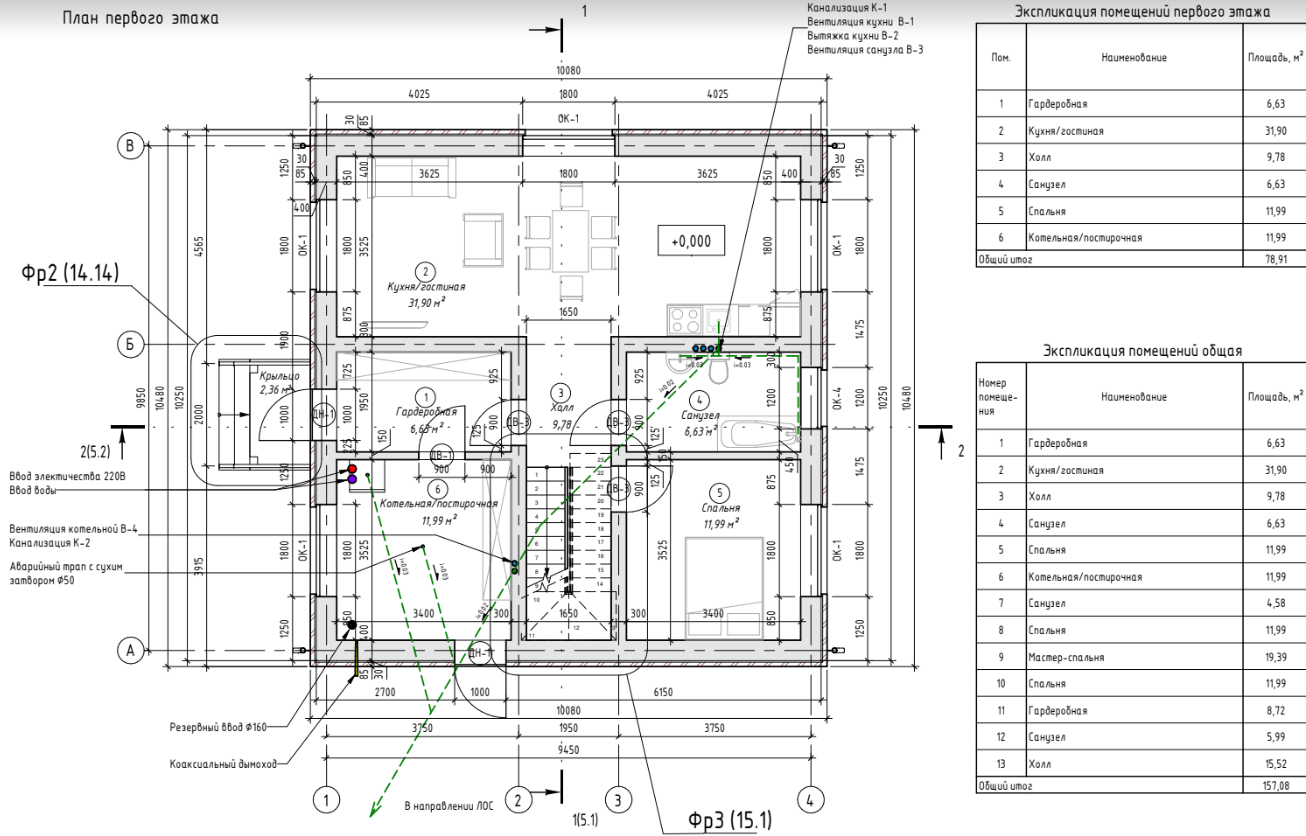
4. Объемно-планировочные решения
• Количество наземных этажей: 2
• Наличие подвала или цокольного этажа: нет
• Режим эксплуатации чердачного пространства: холодный
• Габаритные размеры дома в плане: 10,08 х 10,48 м
• Высота 1 этажа (от пола до потолка): 3,23 м
• Высота 2 этажа (от пола до потолка): 2,873 м
• Проектная нулевая отметка: уровень чистого пола 1-го этажа
• Верхняя высотная отметка здания: +9,064 м
5. Конструктивные решения:
• Состав наружных стен (по направлению к внешнему слою):
1. 400 мм Кладка из газобетонных блоков по ГОСТ 31360 (ДхВхШ) 600х250х400 мм, не выше D400, не ниже В2
2. 30 мм Воздушный зазор
3. 120 мм Облицовочной кирпич, формат 0.7НФ (ДхВхШ) 250х65х85 мм, марка - не ниже М100
• Внутренние несущие стены: кладка из газобетонных блоков по ГОСТ 31360 (ДхВхШ) 600х250х300 мм, не ниже D500, не ниже В2.5
• Внутренние перегородки: кладка из газобетонных блоков по ГОСТ 31360 (ДхВхШ) 600х250х150 мм, не ниже D500
• Вид фундамента: УШП
• Перекрытие над 1-м этажом: железобетонная монолитная плита
• Перекрытие над 2-м этажом: по деревянным балкам с теплоизоляцией
• Конструкция лестницы: монолитная с 1 на 2 этаж
• Конструкция кровли: вальмовая

• Нижегородская область
• Расчетная зимняя температура наиболее холодной пятидневки (об. 0,92) по СП 131.13330.2018: -31 °С
• Расчетная внутренняя температура воздуха: 22 °С
• Градусо-сутки отопительного периода, ГСОП (СП 131.13330.2012 и СП 50.13330.2012): 5400 °С*сут/год
• Карты Приложения Ж СП 20.13330.2016 - IV снег. район, снег. нагрузка 200 кгс/м
2 (2 кПа)
• Сейсмичность района строительства по шкале MSK-64. (СП 14.13330.2018) менее 6 баллов
По всем интересующим вопросам, а также для получения подробной информации
свяжитесь с нами по телефону +7 985 905 07 92