Этажность
2
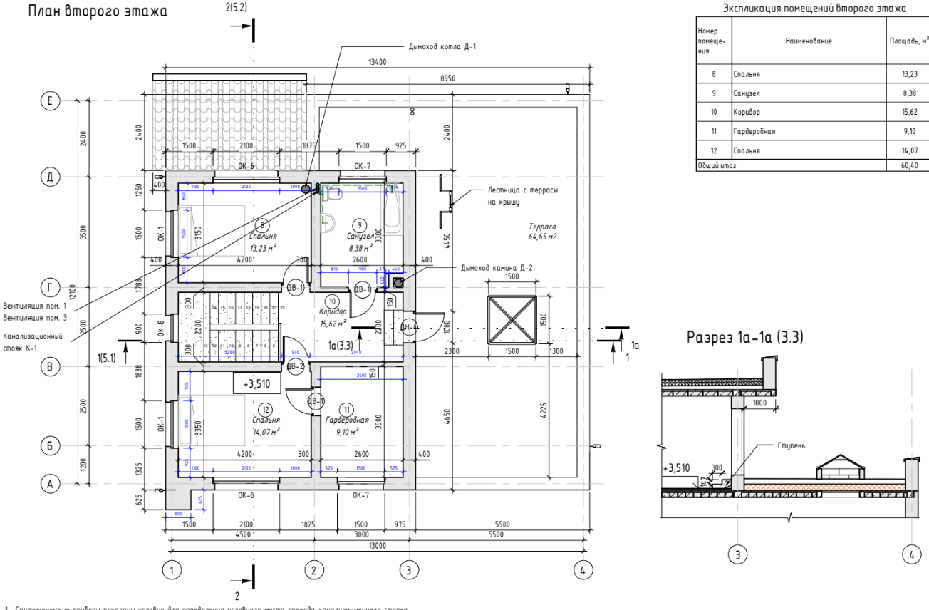
Спальни
3
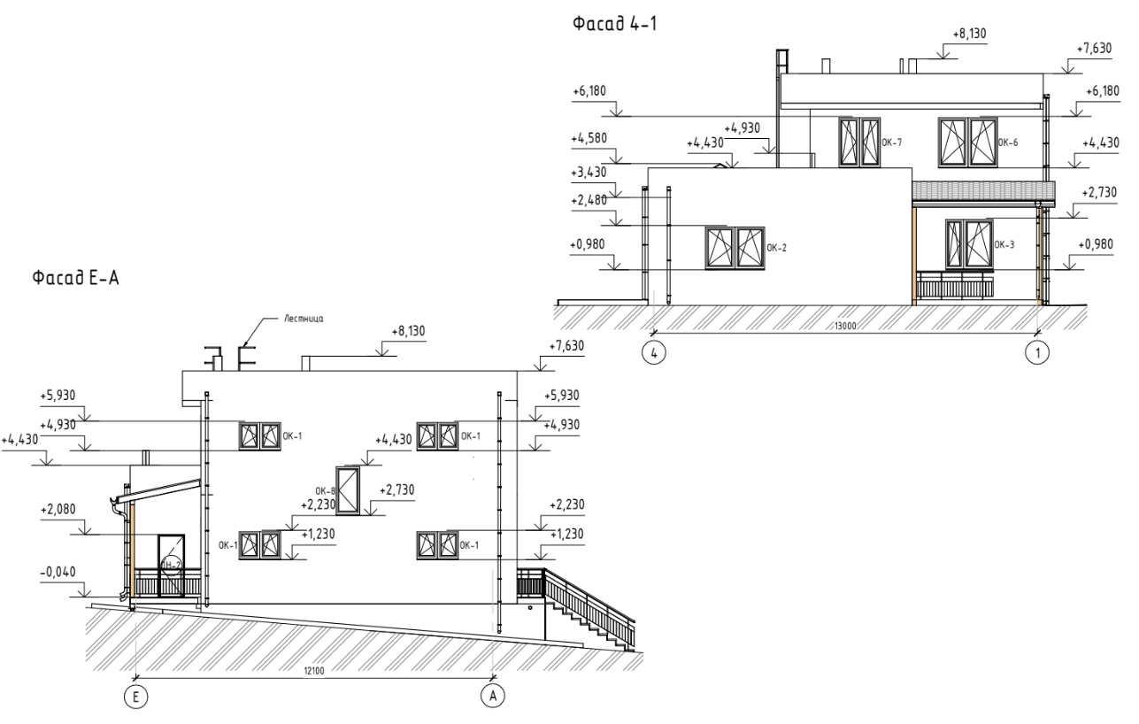
Кровля
Плоская
Габариты
13,125 х 13,4
2.179.2019-135

Описание проекта

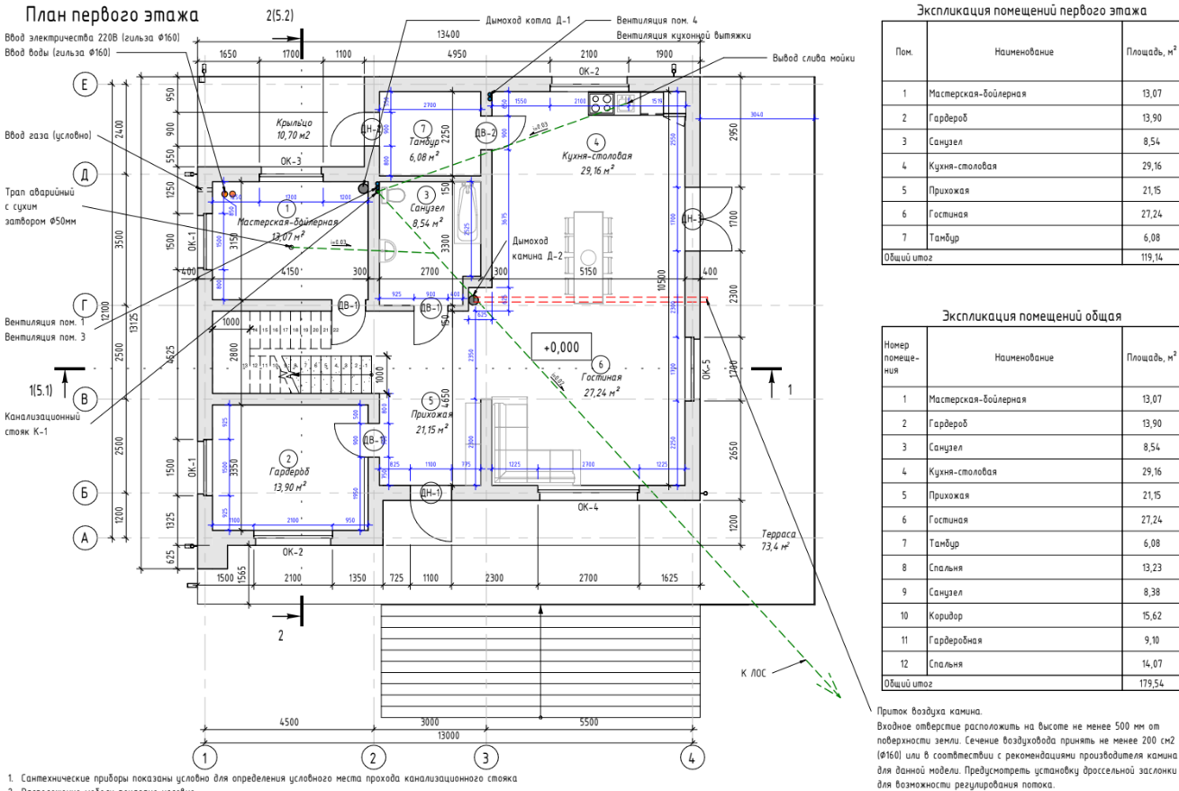
• Площадь застройки: 147,00 м2
• Общая площадь здания (сумма площадей помещений): 179,54 м2
• Общая площадь здания включая площадь террас и крылец: 328,29 м2
• Площадь кровли здания (без навеса): 151,25 м2
4. Объемно-планировочные решения
• Количество наземных этажей: 2
• Наличие подвала или цокольного этажа: нет
• Режим эксплуатации чердачного пространства: чердачное пространство отсутствует
• Габаритные размеры дома в плане: 13,125 х 13,4 м
• Высота 1 этажа (от пола до потолка): 3,23 м
• Высота 2 этажа (от пола до потолка): 2,92 м
• Проектная нулевая отметка: уровень чистого пола 1-го этажа
• Верхняя высотная отметка здания: +7,630 м
5. Конструктивные решения:
• Состав наружных стен:
1. 400 мм Кладка из газобетонных блоков Теплит Твинблок (ДхВхШ) 625х250х400 мм, не выше D400, не ниже В2,5
2. Фасадная штукатурка
• Внутренние несущие стены: кладка из газобетонных блоков Теплит Твинблок (ДхВхШ) 625х250х300 мм, не ниже В2,5
• Внутренние перегородоки: кладка из газобетонных блоков Теплит Твинблок (ДхВхШ) 625х250х150 мм, не ниже B2,5
• Вид фундамента: Ленточный сборно-монолитный
• Перекрытие над 1-м этажом: Сборно-монолитное перекрытие
• Перекрытие над 2-м этажом: Сборно-монолитное перекрытие
• Конструкция лестницы: монолитная с 1 на 2 этаж
• Конструкция кровли: плоская с зенитным фонарем над гостиной

• Свердловская область
• Расчетная зимняя температура наиболее холодной пятидневки (об. 0,92) по СП 131.13330.2018: -35 °С
• Расчетная внутренняя температура воздуха: 22 °С
• Градусо-сутки отопительного периода, ГСОП (СП 131.13330.2012 и СП 50.13330.2012): 6400 °С*сут/год
• Карты Приложения Ж СП 20.13330.2016 - IV снег. район, снег. нагрузка 200 кгс/м2
(2 кПа)
• Сейсмичность района строительства по шкале MSK-64. (СП 14.13330.2018) менее 6 баллов
По всем интересующим вопросам, а также для получения подробной информации
свяжитесь с нами по телефону +7 985 905 07 92