Этажность
2
Спальни
5
Кровля
Плоская
Габариты
17.1 х 10.0
2.243.2019-138
Описание проекта

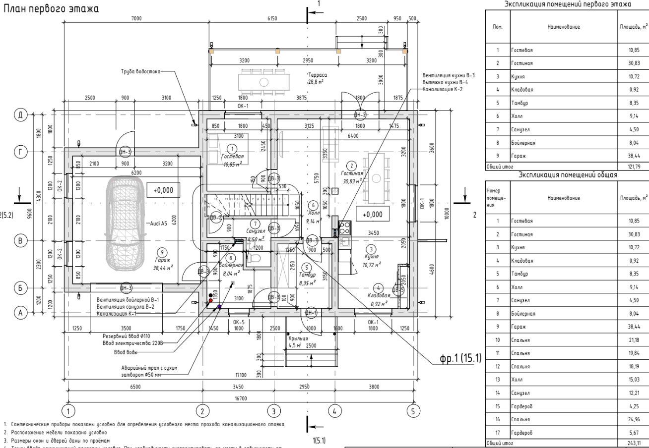
• Площадь застройки: 184,80 м2
• Общая площадь здания (сумма площадей помещений): 243,11 м2
• Общая площадь здания включая площадь террас и крылец: 276,41 м2
• Площадь плоской кровли здания (без навеса): 128,01 м2
4. Объемно-планировочные решения
• Количество наземных этажей: 2
• Наличие подвала или цокольного этажа: нет
• Режим эксплуатации чердачного пространства: отсутствует
• Габаритные размеры дома в плане: 17.1 х 10.0 м
• Высота 1 этажа (от пола до потолка): 3.05/2.3 м
• Высота 2 этажа (от пола до потолка): 2,69 м
• Проектная нулевая отметка: уровень чистого пола 1-го этажа
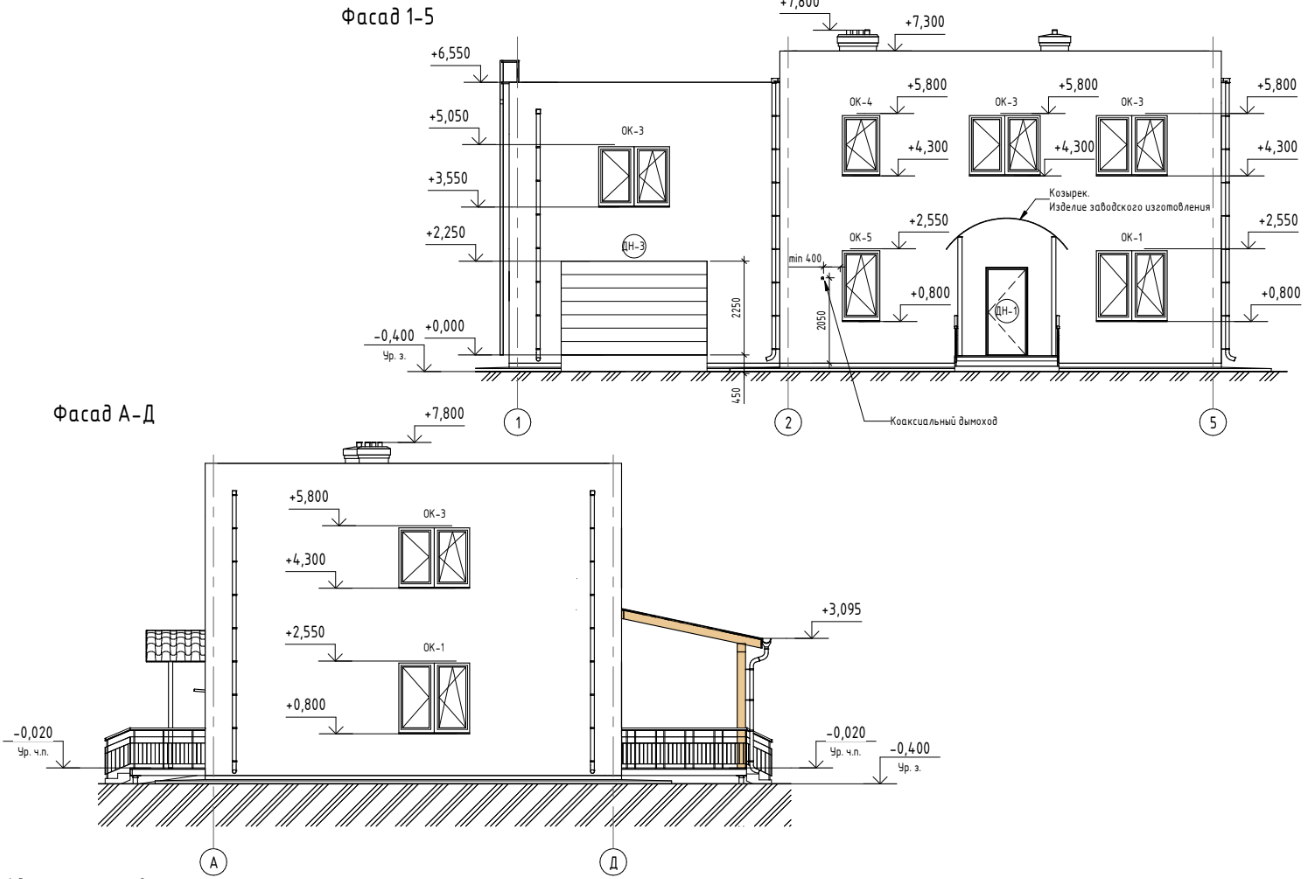
• Верхняя высотная отметка здания: +7,300 м
5. Конструктивные решения:
• Состав наружных стен (по направлению к внешнему слою):
1. 400 мм Кладка из газобетонных блоков по ГОСТ 31360 (ДхВхШ) 625х250х400 мм, не ниже D600, не ниже В3.5
2. Штукатурка 5-20 мм
• Внутренние несущие стены: кладка из газобетонных блоков по ГОСТ 31360 (ДхВхШ) 625х250х300 мм, не ниже D600, не ниже В3.5
• Внутренние перегородки: кладка из газобетонных блоков по ГОСТ 31360 (ДхВхШ) 625х250х150 мм, не ниже D500
• Вид фундамента: плоская фундаментная плита
• Перекрытие над 1-м этажом: сборно-монолитное перекрытие Марко
• Перекрытие над 2-м этажом: сборно-монолитное перекрытие Марко
• Конструкция лестницы: монолитная с 1 на 2 этаж
• Конструкция кровли: плоская

• Краснодарский край
• Расчетная зимняя температура наиболее холодной пятидневки (об. 0,92) по СП 131.13330.2018: -14 °С
• Расчетная внутренняя температура воздуха: 22 °С
• Градусо-сутки отопительного периода, ГСОП (СП 131.13330.2012 и СП 50.13330.2012): 2500 °С*сут/год
• Карты Приложения Ж СП 20.13330.2016 - III снег. район, снег. нагрузка 150 кгс/м2
(1 кПа)
• Сейсмичность района строительства по шкале MSK-64. (СП 14.13330.2018) 7 баллов
По всем интересующим вопросам, а также для получения подробной информации
свяжитесь с нами по телефону +7 985 905 07 92