Этажность
2
Спальни
4
Кровля
Скатная
Габариты
19,94 х 10,54
2.254.2019-147
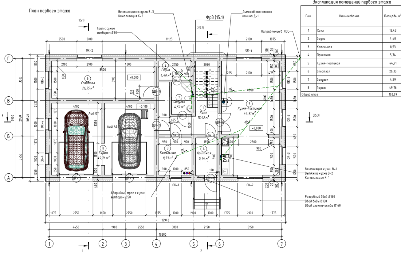
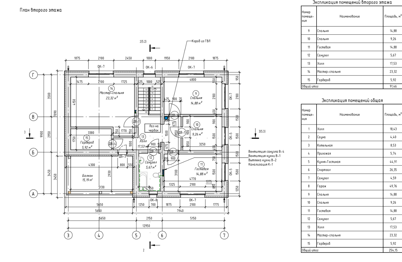
Описание проекта

· Площадь застройки: 210.2 м2
· Общая площадь здания (сумма площадей помещений): 254.15 м2
· Площадь кровли здания (с гаражом): 284,63 м2
Объемно-планировочные решения
· Количество наземных этажей: 2
· Наличие подвала или цокольного этажа: нет
· Габаритные размеры дома в плане: 19,94 х 10,54 м
· Высота 1 этажа (от пола до потолка): 3,000 м
· Высота 2 этажа (от пола до потолка): 2,793 м
· Проектная нулевая отметка: уровень чистого пола 1-го этажа
· Верхняя высотная отметка здания: +8,857 м
Конструктивные решения:
1. Наружные стены (по направлению к внешнему слою):
• кладка из газобетонных блоков размерами 625х400х250 мм /D600 /В3.5 (не ниже) ГОСТ 31360-2007 на клеевом
растворе для тонкошовной кладки Krasland "Газобетон-1", поставщик ООО "Байкальский газобетон".
• ППС16-Ф, 100 мм
• штукатурка, 5-20 мм
2. Внутренние несущих стены:
• кладка из газобетонных блоков размерами 625х300х250 мм /D600 /В3.5 (не ниже) ГОСТ 31360-2007 на клеевом
растворе для тонкошовной кладки Krasland "Газобетон-1", поставщик ООО "Байкальский газобетон".
3. Внутренние перегородки:
• кладка из газобетонных блоков размерами 625х150х250 мм /D600 /В3.5 (не ниже) ГОСТ 31360-2007 на клеевом
растворе для тонкошовной кладки Krasland "Газобетон-1", поставщик ООО "Байкальский газобетон".
4. Вид фундамента: • плоская монолитная фундаментная плита
5. Перекрытие над первым этажом: • монолитная железобетонная плита перекрытия
6. Перекрытие над вторым этажом: • по деревянным балкам с теплоизоляцией
7. Конструкция кровли: • вальмовая

Район строительства: Иркутская область
• Расчетная зимняя температура наиболее холодной пятидневки, об. 0,92 (СП 131.13330.2018): минус 33 °С
• Расчетная внутренняя температура воздуха: 22 °С
• Градусо-сутки отопительного периода, ГСОП (СП 131.13330.2018 и СП 50.13330.2012): 6700 °С*сут/год
• Снеговой район, снеговая нагрузка (карты Приложения Ж СП 20.13330.2016): 2-й район, 100 кгс/м2 (1,0кПа)
• Сейсмичность района строительства по шкале MSK-64 (СП 14.13330.2018): 8 баллов
По всем интересующим вопросам, а также для получения подробной информации
свяжитесь с нами по телефону +7 985 905 07 92