Этажность
2
Спальни
5
Кровля
Плоская
Габариты
11,0 х 13,0
2.214.2019-241
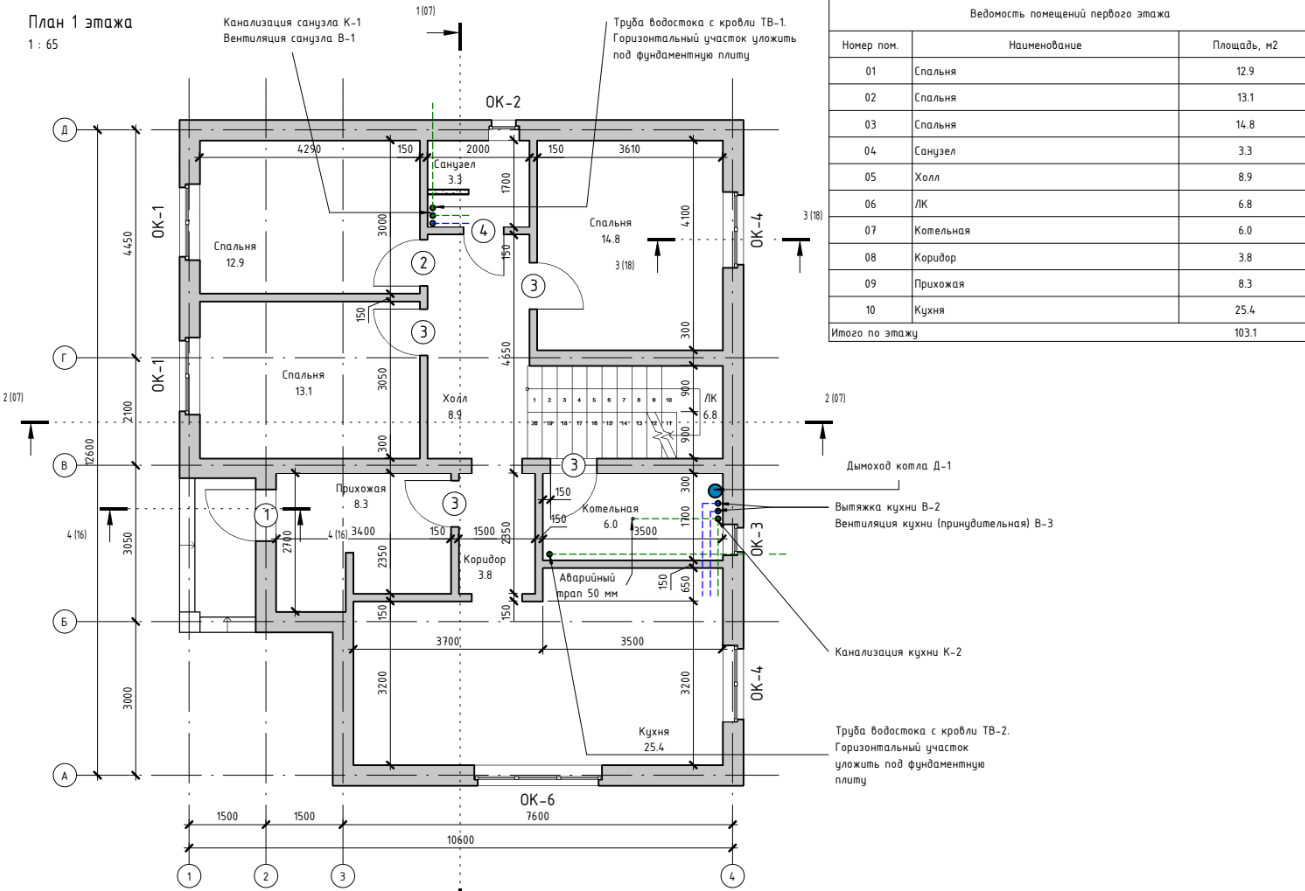
Описание проекта

Общая площадь 214.3 м2, в т.ч.
• 1 этаж 103.2 м2
• 2 этаж 111.1 м2 (включая площадь террасы)
Объемно-планировочные решения
Количество наземных этажей - 2
Наличее подвала - нет
Габаритные размеры здания в плане - 11 х 13 м
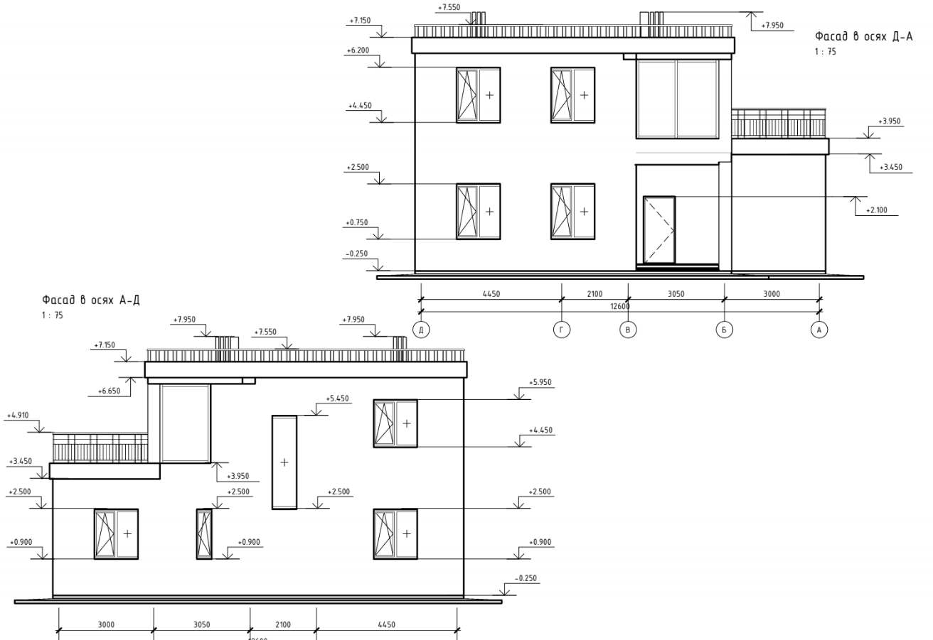
Высота 1 этажа - 3.25 м
Высота 2 этажа - 3 м
Высота здания - 7,15 м
Конструктивные решения
1. Фундамент - Монолитная плита. 2. Перекрытие над 1 этажом - Сборно-монолитное МАРКО. 3. Перекрытие над 2 этажом - Сборно-монолитное МАРКО 4. Материалы наружных стен
• Блоки из автоклавного газобетона (марка по средней плотности не ниже D400, класс по прочности на сжатие не ниже В2) по ГОСТ 31360-2007;
• Тонкослойная штукатурка 5. Материалы внутренних несущих стен
• Блоки из автоклавного газобетона (марка по средней плотности не ниже D400, класс по прочности на сжатие не ниже В2) по ГОСТ 31360-2007; 6. Материалы внутренних ненесущих стен (перегородок)
• Блоки из автоклавного газобетона по ГОСТ 31360-2007 марки по плотности D500 или выше (для повышения звукоизоляции возможна замена на кладку из силикатного или керамического кирпича 120 мм, силикатные перегородочные плиты толщиной 70 или 80 мм). 7. Конструкция крыши - плоская. Эксплуатируемая над 1 этажом, неэксплуатируемая над 2 этажом. 8. Конструктивная система - здание с несущими стенами из автоклавного газобетона.

Калужская область
• Расчетная зимняя температура наиболее холодной пятидневки -25 °С (об. 0,92) по СП 131.13330.2012;
• Карты Приложения Ж СП 20.13330.2011 - III снег. район, снег. нагрузка -180 кгс/м2 (1.8кПа);
• Сейсмичность района строительства менее 6 баллов по шкале MSK-64. (СП 14.13330.2014)
По всем интересующим вопросам, а также для получения подробной информации
свяжитесь с нами по телефону +7 985 905 07 92