Этажность
2
Спальни
3
Кровля
Скатная
Габариты
8,9 х 7,9
2.140.2019-040

Описание проекта

Площадь застройки: 105,5 м2 .
Общая площадь здания (сумма площадей помещений): 140,5 м2 .
Площадь кровли здания (без навесов): 126,8 м2
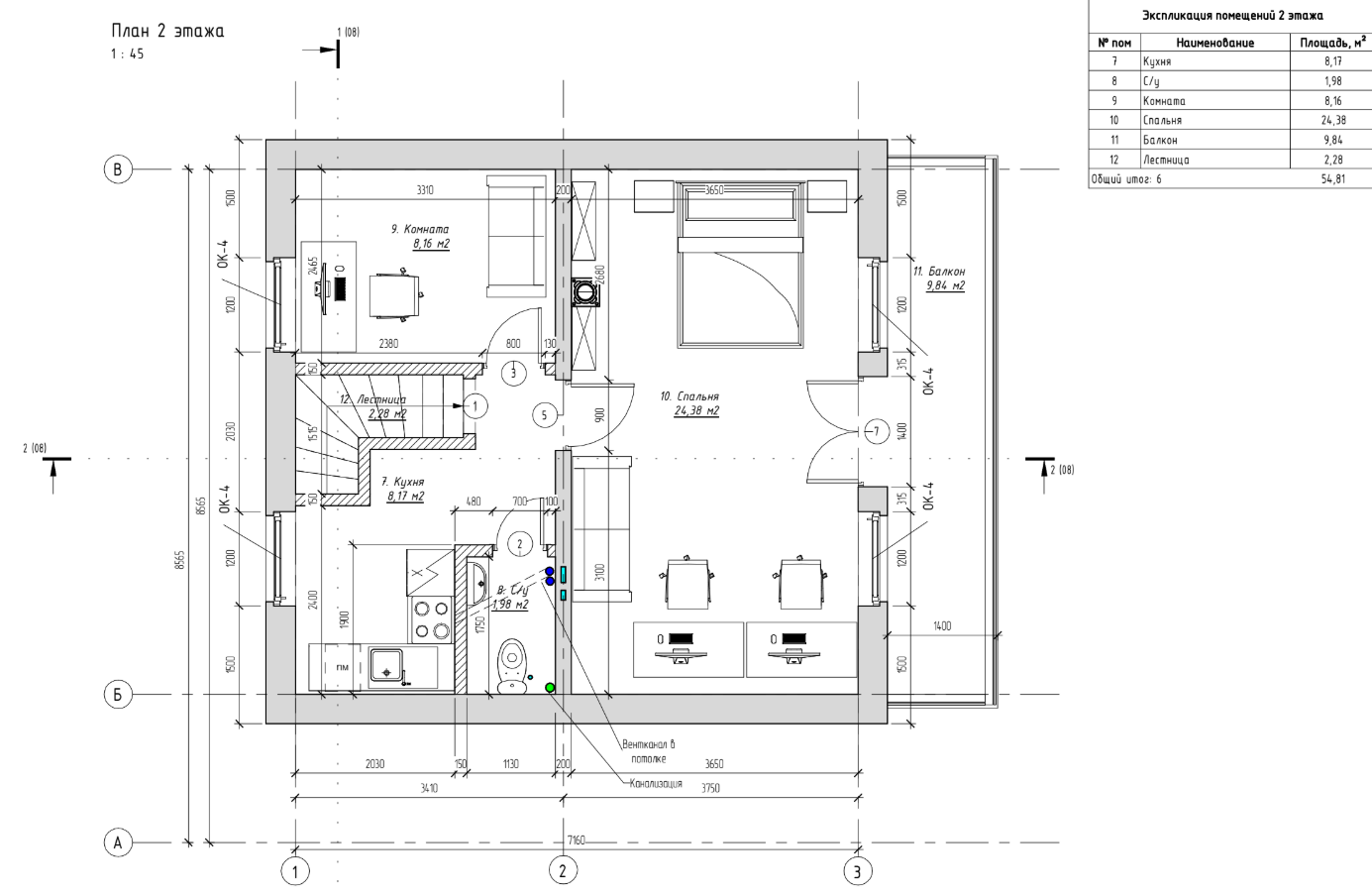
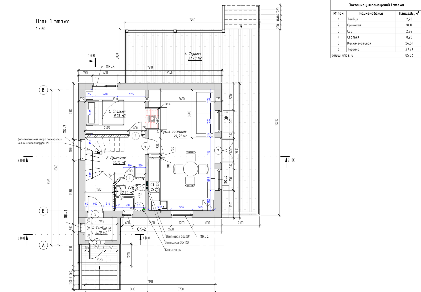
3. Объемно-планировочные решения
• Количество наземных этажей: 2
Наличие подвала: нем
Режим эксплуатации чердачного пространства: чердачное пространство отсутствует
Габаритные размеры дома в плане: 8,9х7,9 м .
Высота 1 этажа (от пола до потолка): 3,000 м
Высота 2 этажа (от пола до потолка): 1,600-3,300м .
Проектная нулевая отметка: уровень чистого пола 1-го этажа
Высота здания (самая высокая точка здания): +7,160 м
4. Конструктивные решения:
Материал наружных несущих стен:
кладка из газобетонных блоков размерами 600(625)x400x250 мм /D400 /B2 (не ниже) ГОСТ 31360-2007 на растворе для тонкошовной кладки (или ППУ-клее для кладки). .
Материал внутренних несущих стен:
Кладка из газобетонных блоков размерами 600(625)х200х250 мм /D400 /B2 (не ниже) ГОСТ 31360-2007 на растворе для тонкошовной кладки (или ППУ-клее для кладки). .
Материал внутренних перегородок:
Кладка из газобетонных блоков размерами 600(625)х150х250 600(625)х100х250мм /D400 /B2 ГОСТ 31360-2007 на растворе для тонкошовной кладки (или ППУ-клее для кладки). .
Вид фундамента: монолитный ленточный, существующий. .
Перекрытие над 1-м этажом: сборно-монолитная плита толщиной 150 мм. .
Конструкция лестницы: монолитная с 1 на 2 этаж.
Конструкция кровли: двухскатная.
Проект разработан для Московской области.
По всем интересующим вопросам, а также для получения подробной информации
свяжитесь с нами по телефону +7 985 905 07 92