Этажность
1
Спальни
2
Кровля
Плоская
Габариты
10,7 х 10,7
1.091.2019-066
Описание проекта

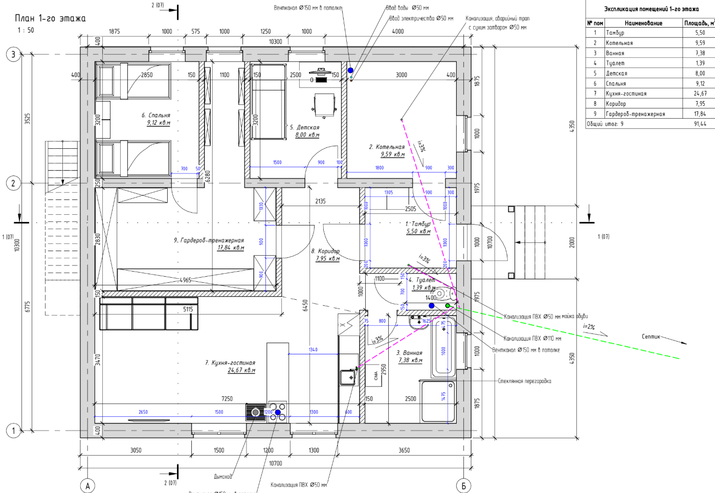
· Площадь застройки 114,49 м2
· Общая площадь здания (сумма площадей помещений) 91,44 м2
· Площадь кровли здания (без навесов) 98,03 м2
3. Объемно-планировочные решения
· Количество наземных этажей 1
· Наличие подвала нет
· Режим эксплуатации чердачного пространства отсутствует
· Габаритные размеры дома в плане 10,7х10,7 м
· Высота 1-го этажа (от пола до потолка) 3,000 м
· Проектная нулевая отметка уровень чистого пола 1-го этажа
· Высота здания (самая высокая точка здания) +3,700 м 4. Конструктивные решения
· Материал наружных несущих стен Кладка из газобетонных блоков размерами 625х400х250 мм /D300 /В1,5 (не ниже) ГОСТ 31360-2007 на растворе для тонкошовной кладки (или ППУ-клее для кладки).
· Материал внутренних несущих стен Кладка из газобетонных блоков размерами 625х250х250 мм /D500 /В2 (не ниже) ГОСТ 31360-2007 на растворе для тонкошовной кладки (или ППУ-клее для кладки).
· Материал внутренних перегородок
Кладка из газобетонных блоков размерами 625х150х250 мм /D500 / ГОСТ 31360-2007 на растворе для тонкошовной кладки (или ППУ-клее для кладки).
· Вид фундамента монолитная фундаментная плита.
· Перекрытие над 1-м этажом сборно-монолитное.
· Конструкция кровли плоская эксплуатируемая.

Район строительства Нижегородская область
• Расчетная зимняя температура наиболее холодной пятидневки, об. 0,92 (СП 131.13330.2012) минус 31 °С
• Расчетная внутренняя температура воздуха 22 °С
• Снеговой район, нормативная снеговая нагрузка (карты Приложения Е СП 20.13330.2016) 4-й район, 200 кгс/м2 (2,0 кПа)
• Сейсмичность района строительства по шкале MSK-64 (СП 14.13330.2018) 6 баллов
По всем интересующим вопросам, а также для получения подробной информации
свяжитесь с нами по телефону +7 985 905 07 92