Этажность
1
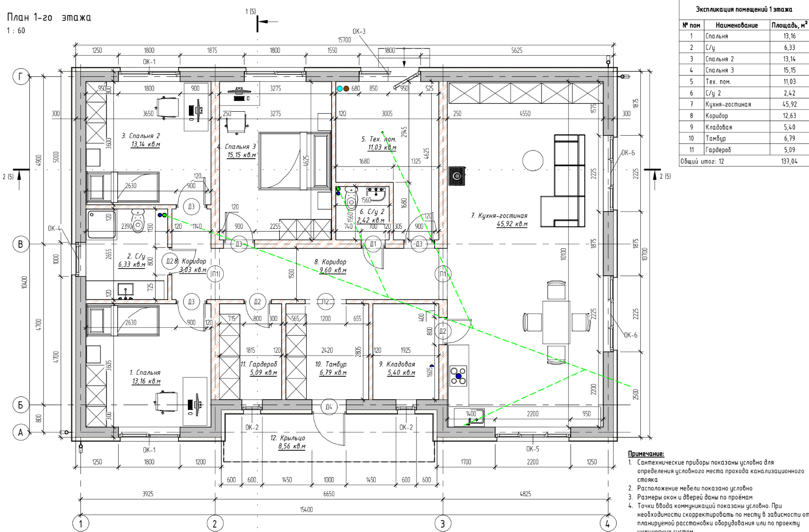
Спальни
3
Кровля
Скатная
Габариты
15,7 х 10,7
1.137.2019-149
Описание проекта

· Площадь застройки: 178,1 м2
· Общая площадь здания (сумма площадей помещений): 137,0 м2
· Общая площадь здания включая площадь террас и крылец: 145,6 м2
· Площадь кровли здания (без навесов): 240,5 м2
4. Объемно-планировочные решения
· Количество наземных этажей: 1
· Наличие подвала или цокольного этажа: нет
· Режим эксплуатации чердачного пространства: холодный
· Габаритные размеры дома в плане: 15,7 х 10,7 м
· Высота 1 этажа (от пола до потолка): 2,950 м
· Проектная нулевая отметка: уровень чистого пола 1-го этажа
· Верхняя высотная отметка здания: +5,630 м
5. Конструктивные решения:
• Состав наружных стен (по направлению к внешнему слою):
1. 300 мм Кладка из газобетонных блоков (ДхВхШ) 625х250х300 мм, D500, В3,5 ИНСИ
2. Утеплитель ISOVER Фасад 100мм
3. ~7 мм. Тонкослойная фасадная штукатурная система
· Внутренние несущие стены: 250 мм. Кладка из керамического кирпича (ГОСТ 530-2012)
· Внутренние перегородоки: 150 мм. Кладка из керамического кирпича (ГОСТ 530-2012)
· Вид фундамента: малозаглубленный монолитный ленточный фундамент
• Перекрытие над 1-м этажом: по деревянным балкам с теплоизоляцией
· Конструкция кровли: Четырехскатная вальмовая

Район строительства: Челябинская область
• Расчетная зимняя температура наиболее холодной пятидневки, об. 0,92 (СП 131.13330.2012): минус 35 °С
• Расчетная внутренняя температура воздуха: 22 °С
• Градусо-сутки отопительного периода, ГСОП (СП 131.13330.2012 и СП 50.13330.2012): 6300 °С*сут/год
• Снеговой район, снеговая нагрузка (карты Приложения Ж СП 20.13330.2016): 3-й район, 150 кгс/м2 (1,5 кПа)
• Сейсмичность района строительства по шкале MSK-64 (СП 14.13330.2018): 6 баллов