Этажность
2
Спальни
4
Кровля
Скатная
Габариты
11,74 х 16,10
2.152.2020-014
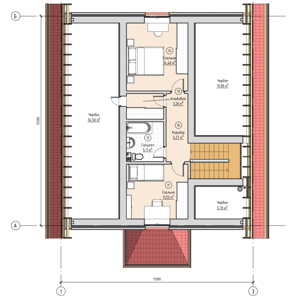
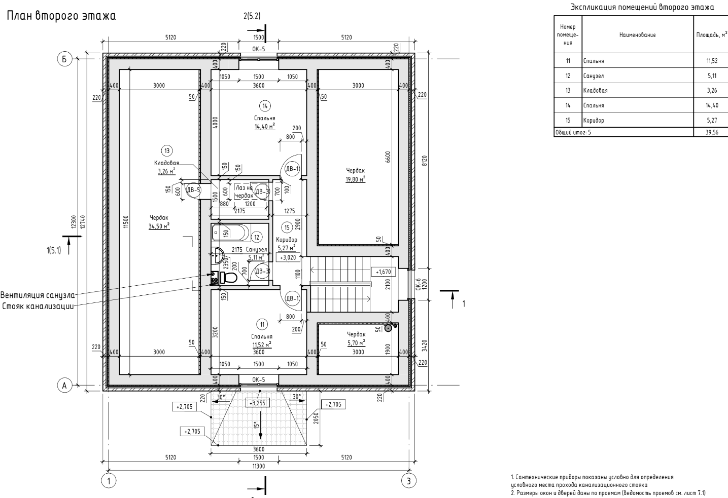
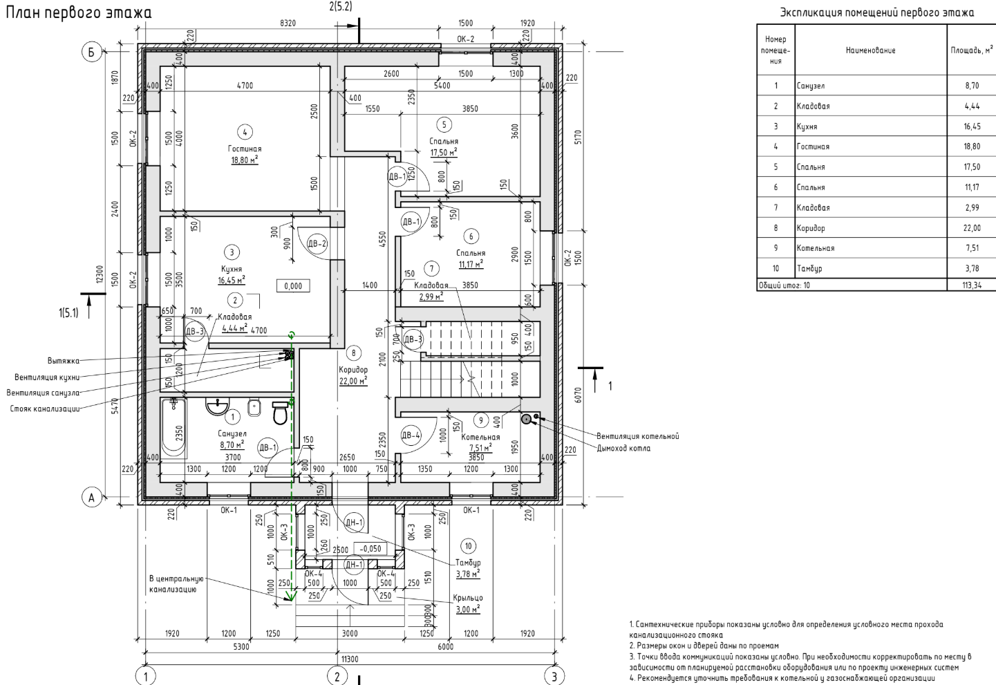
Описание проекта

· Площадь застройки: 159,65 м2
· Общая площадь здания (сумма площадей помещений): 152,90 м2
· Общая площадь здания включая площадь террас и крылец 155,90 м2
· Площадь кровли здания (без навесов): 210,00 м2
Объемно-планировочные решения
· Количество наземных этажей: 2
· Наличие подвала или цокольного этажа: нет
· Габаритные размеры дома в плане: 11,74 х 16,10 м
· Высота 1 этажа (от пола до потолка): 2,820 м
· Высота 2 этажа (от пола до потолка): 2,680 м
· Проектная нулевая отметка: уровень чистого пола 1-го этажа
· Верхняя высотная отметка здания: +7,360 м
Конструктивные решения:
• Состав наружных стен (по направлению к внешнему слою):
400 мм Кладка из газобетонных блоков (ДхВхШ) 625х250х400 мм, D500, не ниже В2 на растворе для тонкошовной кладки
(или ППУ-клее для кладки); 50 мм Утеплитель минераловатный; 50 мм воздушный зазор; 120 мм Кирпич облицовочный
· Внутренние несущие стены: 400 мм Кладка из газобетонных блоков 625х250х400 мм
· Внутренние перегородки: газобетонные перегородки 150 мм
· Вид фундамента: монолитный ленточный заглубленный
· Перекрытие над первым этажом: монолитная плита
· Перекрытие над вторым этажом: по деревянным балкам
· Конструкция кровли: двускатная

Район строительства: Алтайский край
• Расчетная зимняя температура наиболее холодной пятидневки, об. 0,92 (СП 131.13330.2018): минус 36 °С
• Расчетная внутренняя температура воздуха: 22 °С
• Градусо-сутки отопительного периода, ГСОП (СП 131.13330.2018 и СП 50.13330.2012): 6100 °С*сут/год
• Снеговой район, снеговая нагрузка (карты Приложения Ж СП 20.13330.2016): 4-й район, 200 кгс/м2 (2кПа)
• Сейсмичность района строительства по шкале MSK-64 (СП 14.13330.2018): 6 баллов