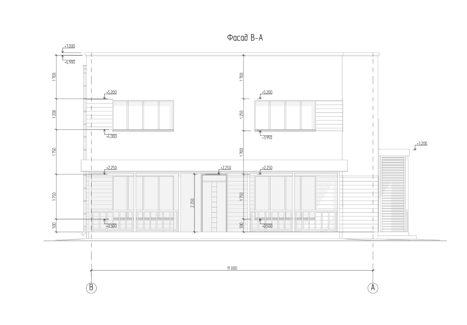
Этажность
2
Спальни
4
Кровля
Плоская
Габариты
11 х 10
2.176.2020-020
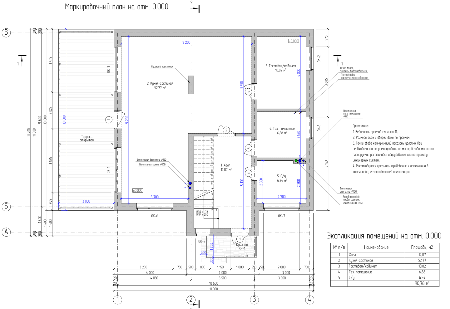
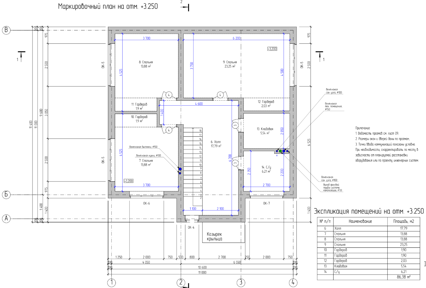
Описание проекта

- Площадь застройки: 149,5 м2
- Общая площадь здания (сумма площадей помещений): 176,8 м2
- Общая площадь здания включая площадь террас и крылец: 210,7 м2
- Площадь кровли здания (без навесов): 98,3 м2
Объемно-планировочные решения:
- Количество надземных этажей: 2
- Наличие подвала или цокольного этажа: нет
- Габаритные размеры дома в плане: 11 х 10 м
- Высота 1 этажа (от пола до потолка): 3 м
- Высота 2 этажа (от пола до потолка): 3 м
- Проектная нулевая отметка: уровень верха плиты УШП
- Верхняя высотная отметка здания: +7.000 м
Конструктивные решения:
- Состав наружных стен (по направлению к внешнему слою):
- Наружные несущие стены: кладка из газобетонных блоков, толщина 400 мм, D 400, B 2,5
- Внутренние несущих стены: кладка из газобетонных блоков, толщина 300 мм, D 500, B 2,5 / несущий простенок D 500, B 3,5
- Перегородоки: кладка из газобетонных блоков, толщина 150 мм
- Тип фундамента - утепленная шведская плита
- Межэтажное перекрытие - часторебристое, толщиной 200 мм
- Чердачное перекрытие - часторебристое, толщиной 200 мм
- Конструкция кровли - плоская

Район строительства: Ленинградская область
- Расчетная зимняя температура наиболее холодной пятидневки, об. 0,92 (СП 131.13330.2018): -24 °С
- Расчетная внутренняя температура воздуха: 22 °С
- Градусо-сутки отопительного периода, ГСОП (СП 131.13330.2018 и СП 50.13330.2012): 4600 °С*сут/год
- Снеговой район, снеговая нагрузка (карты Приложения Ж СП 20.13330.2016): 3-й район, 180 кгс/м2
- Сейсмичность района строительства по шкале MSK-64 (СП 14.13330.2018): 5 баллов
По всем интересующим вопросам, а также для получения подробной информации
свяжитесь с нами по телефону +7 985 905 07 92