Этажность
2
Спальни
5
Кровля
Плоская
Габариты
10 х 11
2.160.2019-125
Описание проекта

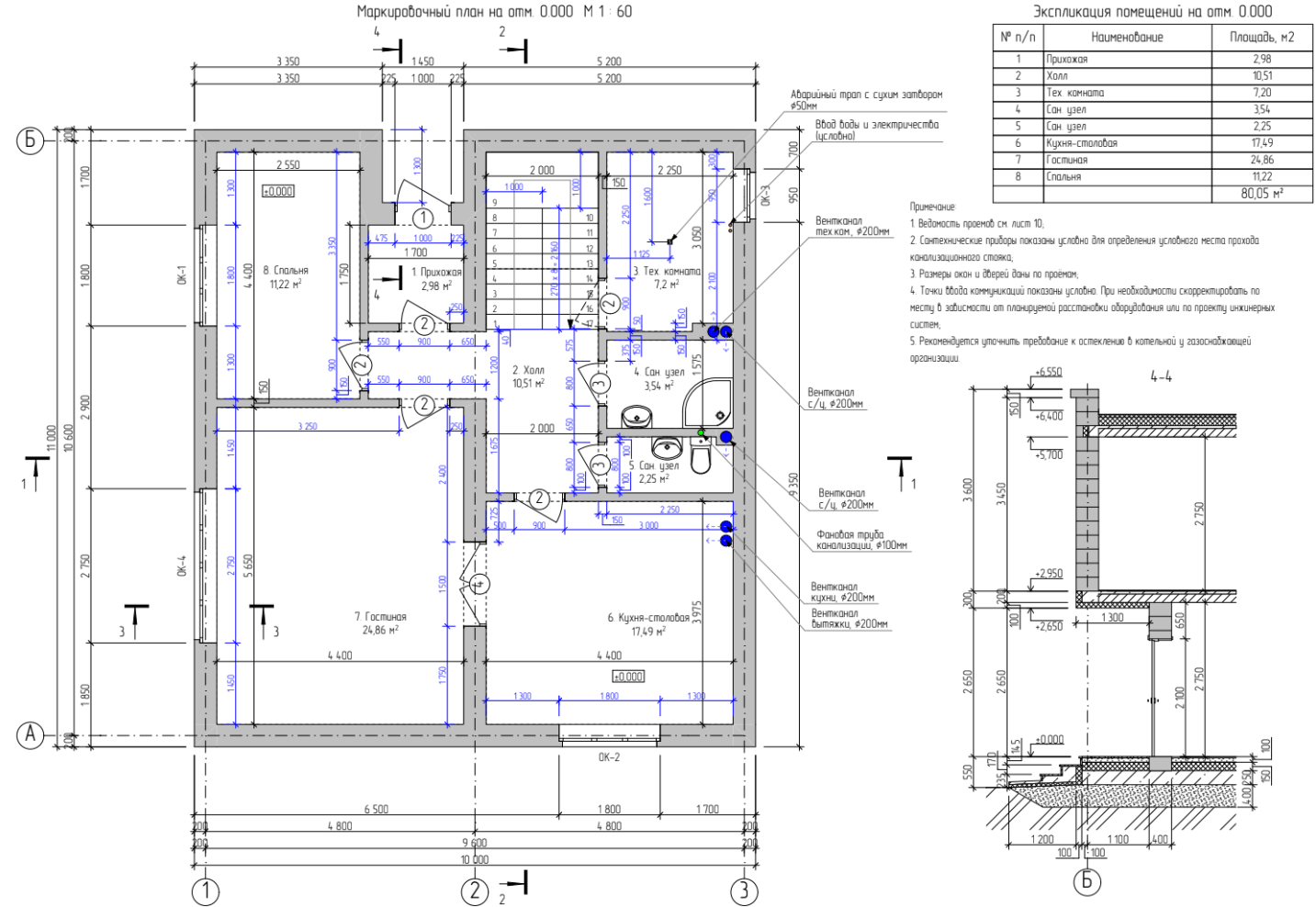
- Площадь застройки: 110м2
- Общая площадь здания (сумма площадей помещений): 160 м2
- Общая площадь здания включая площадь террас и крылец: 160 м2
- Площадь кровли здания (без навесов): 93,8 м2
4. Объемно-планировочные решения
- Количество наземных этажей: 2
- Наличие подвала или цокольного этажа: нет
- Режим эксплуатации чердачного пространства: без чердака
- Габаритные размеры дома в плане: 10 х 11 м
- Высота 1 этажа (от пола до потолка): 2,75 м
- Высота 2 этажа (от пола до потолка): 2,75 м
- Проектная нулевая отметка: чистый пол 1-го этажа
- Верхняя высотная отметка здания: +6.650
5. Конструктивные решения
- Состав наружных стен (по направлению к внешнему слою):
1. 400 мм Кладка из газобетонных блоков (ДхВхШ) 600/625х250х400 мм, D400, В2,5
2. 30 мм Штукатурка известково-песчаная
- Внутренние несущие стены: 300/400 мм, кладка из газобетонных блоков, D500, В2,5
- Внутренние перегородки: 150 мм, кладка из газобетонных блоков, D500, В2,5
- Вид фундамента: железобетонная плита
- Перекрытие над 1-м этажом: сборно-монолитное
- Перекрытие над 2-м этажом: сборно-монолитное
- Конструкция лестницы: железобетонная монолитная
- Конструкция кровли: плоская, не эксплуатируемая

Район строительства: Московская область
- Расчетная зимняя температура наиболее холодной пятидневки, об. 0,92 (СП 131.13330.2012): минус 27 °С
- Расчетная внутренняя температура воздуха: 22 °С
- Градусо-сутки отопительного периода, ГСОП (СП 131.13330.2012 и СП 50.13330.2012): 5000 °С*сут/год
- Снеговой район, снеговая нагрузка (карты Приложения Ж СП 20.13330.2016): 3-й район, 150 кгс/м2 (1,5 кПа)
- Сейсмичность района строительства по шкале MSK-64 (СП 14.13330.2018): 5 баллов
По всем интересующим вопросам, а также для получения подробной информации
свяжитесь с нами по телефону +7 985 905 07 92