Этажность
2
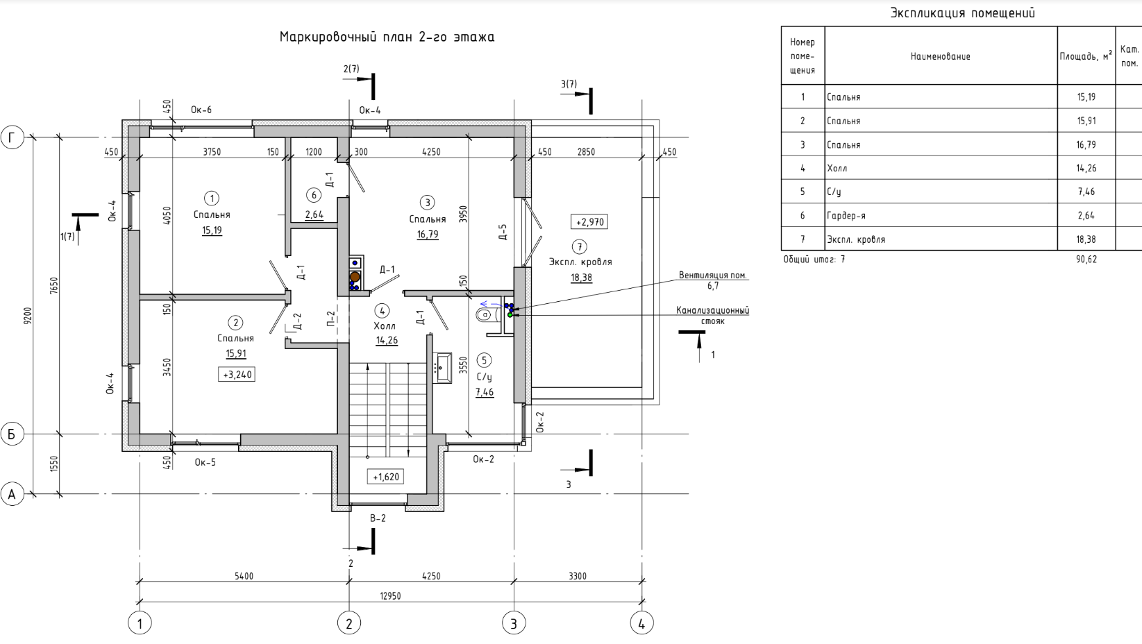
Спальни

Кровля
плоская
Габариты
13,85 х 10,1
2.185.2020-019
Описание проекта

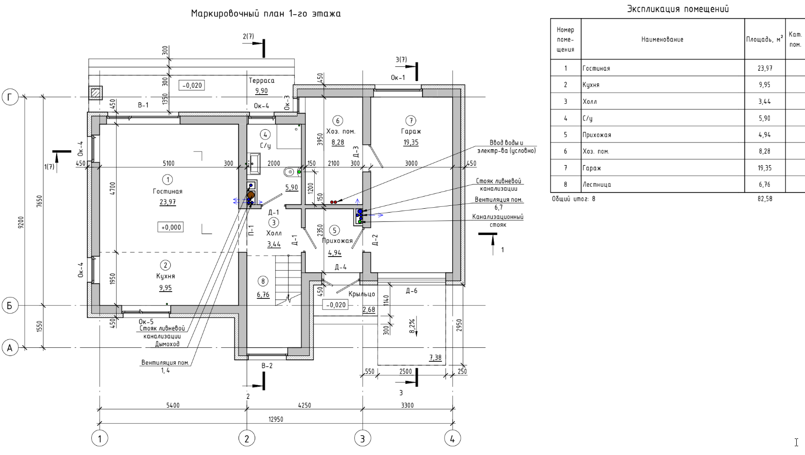
Площадь застройки: 114 м2
Общая площадь здания (сумма площадей помещений): 185,8 м2
Общая площадь здания включая площадь террас и крылец: 205,7 м2
Площадь кровли здания: 95,56 м2
Объемно-планировочные решения
Количество наземных этажей: 2
Наличие подвала или цокольного этажа: нет
Габаритные размеры дома в плане: 13,85 х 10,1 м
Высота 1 этажа (от пола до потолка): 2,990 м
Высота 2 этажа (от пола до потолка): 2,960 м
Проектная нулевая отметка: уровень чистого пола 1-го этажа
Верхняя высотная отметка здания: +7,810 м
Конструктивные решения:
Состав наружных стен (по направлению к внешнему слою):

300 мм, газобетонные блоки (ДхВхШ) 600х288х300 мм, D500, не ниже В2,5
на растворе для тонкошовной кладки (или ППУ-клее для кладки).
Утеплитель ППС-16Ф, 150 мм.

Внутренние несущие стены: 300 мм, газобетонные блоки (ДхВхШ) 600х288х300 мм, D500, не ниже В2,5
Внутренние перегородки: 144 мм, газобетонные блоки (ДхВхШ) 600х200х150 мм, D500, не ниже В2,5
Вид фундамента: малозаглубленная монолитная фундаментная плита
Перекрытие над 1-м этажом: железобетонная монолитная плита
• Перекрытие над 2-м этажом: железобетонная монолитная плита
• Конструкция лестницы: железобетонная монолитная лестница
Конструкция кровли: Плоская

Район строительства: г. Владивосток
• Расчетная зимняя температура наиболее холодной пятидневки, об. 0,92 (СП 131.13330.2012): минус 22 °С
• Расчетная внутренняя температура воздуха: 22 °С
• Градусо-сутки отопительного периода, ГСОП (СП 131.13330.2012 и СП 50.13330.2012): 4800 °С*сут/год
• Снеговой район, снеговая нагрузка (карты Приложения Ж СП 20.13330.2016): 2-й район, 100 кгс/м2 (1,5кПа)
По всем интересующим вопросам, а также для получения подробной информации
свяжитесь с нами по телефону +7 985 905 07 92