Этажность
1
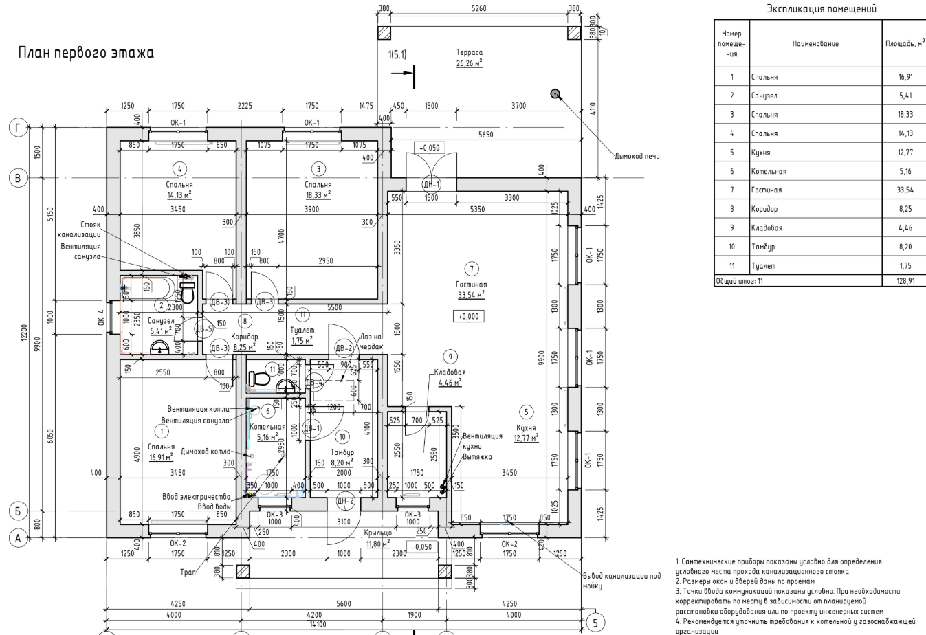
Спальни
3
Кровля
Скатная
Габариты
17,0 х 16,4
1.128.2020-026
Описание проекта

· Площадь застройки: 205,3 м2
· Общая площадь здания (сумма площадей помещений): 128,9 м2
· Общая площадь здания включая площадь террас и крылец: 166,96 м2
· Площадь кровли здания (без навесов): 258,6 м2
Объемно-планировочные решения
· Количество наземных этажей: 1
· Наличие подвала или цокольного этажа: нет
· Габаритные размеры дома в плане: 17,0 х 16,4 м
· Высота 1 этажа (от пола до потолка): 3,250 м
· Проектная нулевая отметка: уровень чистого пола 1-го этажа
· Верхняя высотная отметка здания: +6,48 м
Конструктивные решения:
• Состав наружных стен (по направлению к внешнему слою):
400 мм Кладка из газобетонных блоков (ДхВхШ) 625х250х400 мм, не выше D500, не ниже В2 на растворе для
тонкошовной кладки (или ППУ-клее для кладки)
· Внутренние несущих стены: кладка из газобетонных блоков 625x250x300 мм, D600, не ниже В2.5 на растворе для
тонкошовной кладки (или ППУ-клее для кладки)
· Внутренние перегородки: газобетонные перегородки 150 мм
· Вид фундамента: монолитная плита
· Чердачное перекрытие: деревянные балки
· Конструкция кровли: многоскатная

Район строительства: Респ. Марий Эл
• Расчетная зимняя температура наиболее холодной пятидневки, об. 0,92 (СП 131.13330.2018): минус 33 °С
• Расчетная внутренняя температура воздуха: 22 °С
• Градусо-сутки отопительного периода, ГСОП (СП 131.13330.2018 и СП 50.13330.2012): 5600 °С*сут/год
• Снеговой район, снеговая нагрузка (карты Приложения Ж СП 20.13330.2016): 4-й район, 200 кгс/м2 (2,0кПа)
• Сейсмичность района строительства по шкале MSK-64 (СП 14.13330.2018): 6 баллов