Этажность
1
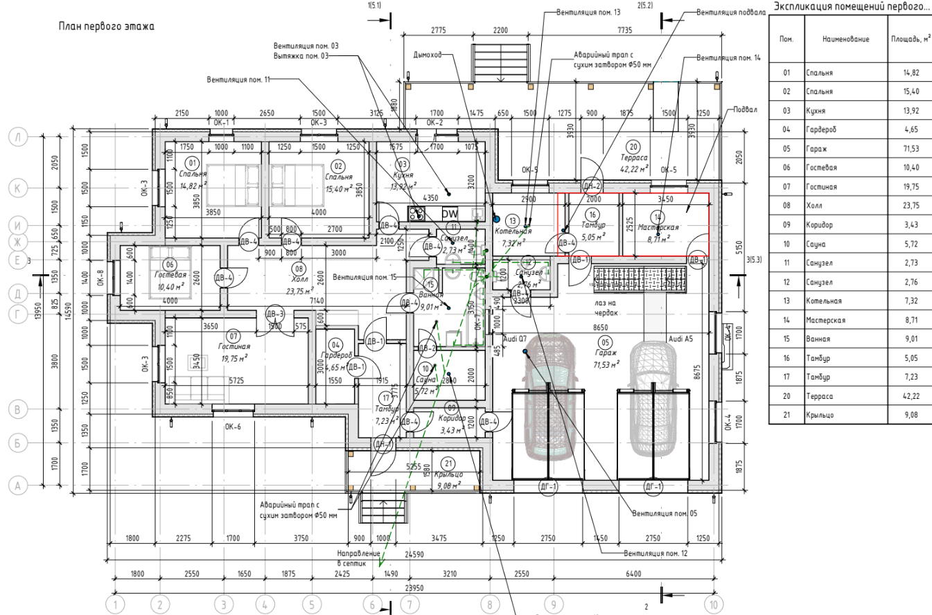
Спальни
3
Кровля
Скатная
Габариты
24,59 х 14,59
1.253.2020-052
Описание проекта

· Площадь застройки: 339.4 м2
· Общая площадь здания (сумма площадей помещений c подвалом): 253.01 м2
· Площадь кровли здания (с террасой и крыльцом): 440.23 м2
Объемно-планировочные решения
· Количество наземных этажей: 1
· Наличие подвала или цокольного этажа: подвал и смотровая яма
· Габаритные размеры дома в плане: 24,59 х 14,59 м
· Высота 1 этажа (от пола до потолка): 3,250 м
· Проектная нулевая отметка: уровень чистого пола 1-го этажа
· Верхняя высотная отметка здания: +6,698 м
Конструктивные решения:
1. Наружные стены (по направлению к внешнему слою):
• кладка из газобетонных блоков размерами 625х400х250 мм /D600 /В3.5 (не ниже) ГОСТ 31360-2007 на клеевом
растворе для тонкошовной кладки Krasland "Газобетон-1", поставщик ООО "Байкальский газобетон".
• ППС16-Ф, 100 мм
• штукатурка, 5-20 мм
2. Внутренние несущих стены:
• кладка из газобетонных блоков размерами 625х300х250 мм /D600 /В3.5 (не ниже) ГОСТ 31360-2007 на клеевом
растворе для тонкошовной кладки Krasland "Газобетон-1", поставщик ООО "Байкальский газобетон".
3. Внутренние перегородки:
• кладка из газобетонных блоков размерами 625х150х250 мм /D600 /В3.5 (не ниже) ГОСТ 31360-2007 на клеевом
растворе для тонкошовной кладки Krasland "Газобетон-1", поставщик ООО "Байкальский газобетон".
4. Вид фундамента:
• монолитный ленточный фундамент с полом по грунту
5. Перекрытие над первым этажом:
• часторебристое перекрытие
6. Конструкция кровли:
• многоскатная

• Район строительства: Республика Бурятия
• Расчетная зимняя температура наиболее холодной пятидневки, об. 0,92 (СП 131.13330.2018): минус 33 °С
• Расчетная внутренняя температура воздуха: 22 °С
• Градусо-сутки отопительного периода, ГСОП (СП 131.13330.2018 и СП 50.13330.2012): 7200 °С*сут/год
• Снеговой район, снеговая нагрузка (карты Приложения Ж СП 20.13330.2016): 2-й район, 100 кгс/м2 (1,0кПа)
• Сейсмичность района строительства по шкале MSK-64 (СП 14.13330.2018): 8 баллов