Этажность
2
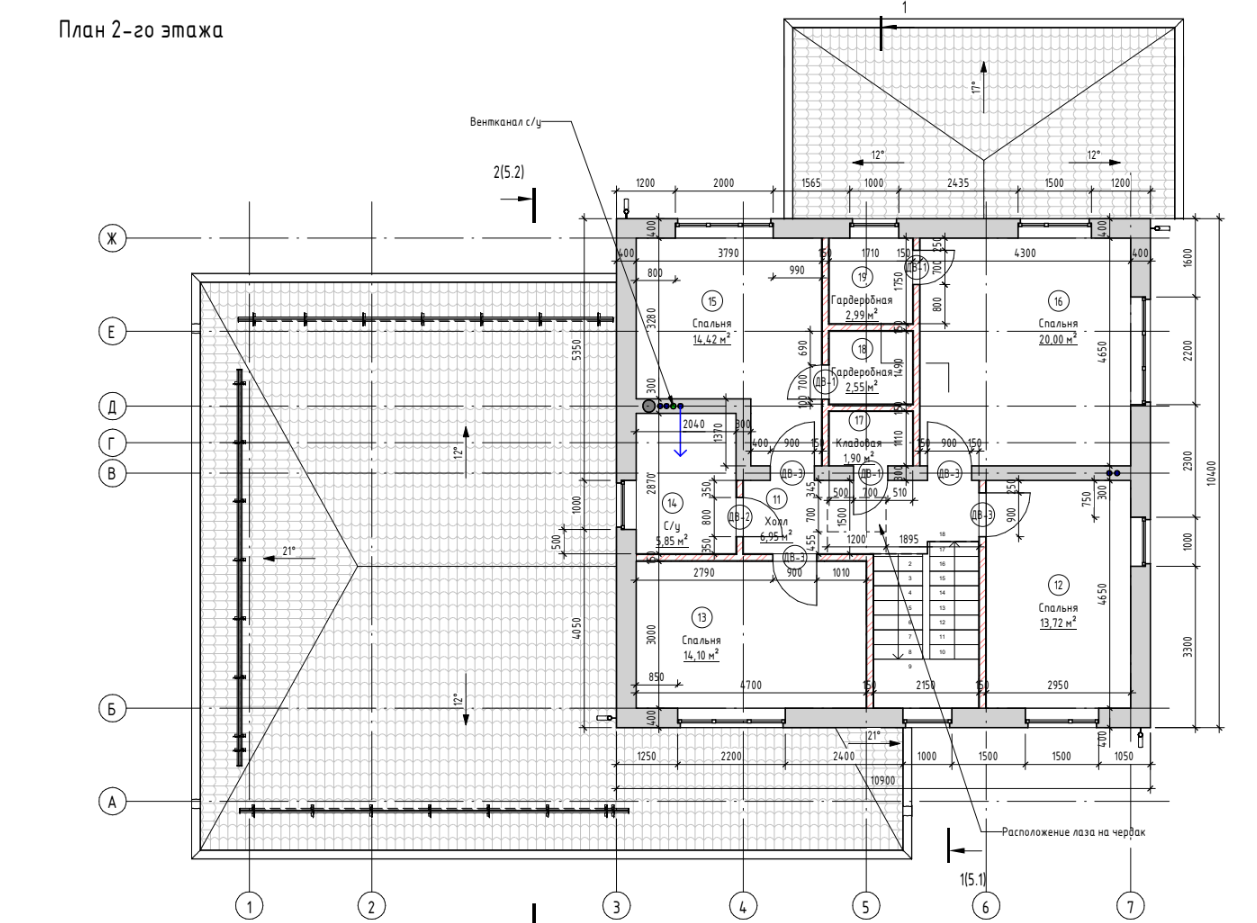
Спальни
5
Кровля
Скатная
Габариты
18,8 х 12,3
2.241.2020-024
Описание проекта

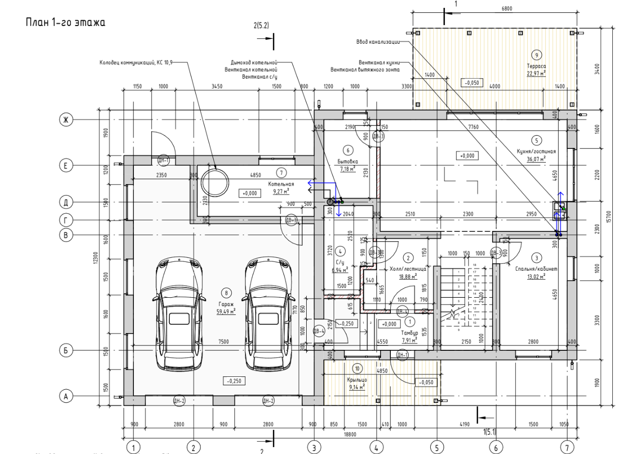
· Площадь застройки: 239,35 м2
· Общая площадь здания (сумма площадей помещений): 241,24 м2
· Общая площадь здания включая площадь террас и крылец: 273,35 м2
· Площадь кровли здания (без навесов): 281,7 м2 Объемно-планировочные решения
· Количество наземных этажей: 2
· Наличие подвала или цокольного этажа: нет
· Габаритные размеры дома в плане: 18,8 х 12,3 м
· Высота 1 этажа (от пола до потолка): 3,050 м
· Высота 2 этажа (от пола до потолка): 2,755 м
· Проектная нулевая отметка: уровень чистого пола 1-го этажа
· Верхняя высотная отметка здания: +9,155 м Конструктивные решения:
• Состав наружных стен (по направлению к внешнему слою):
400 мм Кладка из газобетонных блоков (ДхВхШ) 600х300х400 мм, D500, не ниже В2
· Внутренние несущих стены: 300 мм, кладка из газобетонных блоков (ДхВхШ) 600х300х300 мм, D500 или выше, не ниже В2,5
· Внутренние перегородки: 120 мм, полнотелый кирпич формата 1НФ размерами 250х120х65 мм, кирпич марки - не ниже М100, марка кладочного раствора - не ниже М75
· Вид фундамента: плита на утепленном основании
· Перекрытие над чердаком: по деревянным балкам с теплоизоляцией
· Конструкция кровли: четырехскатная

• Район строительства: Хабаровский край
• Расчетная зимняя температура наиболее холодной пятидневки, об. 0,92 (СП 131.13330.2018): минус 29 °С
• Расчетная внутренняя температура воздуха: 22 °С
• Градусо-сутки отопительного периода, ГСОП (СП 131.13330.2018 и СП 50.13330.2012): 6100 °С*сут/год
• Снеговой район, снеговая нагрузка (карты Приложения Е СП 20.13330.2016): 2-й район, 100 кгс/м2 (1,0кПа)
• Сейсмичность района строительства по шкале MSK-64 (СП 14.13330.2018): 6 баллов