Этажность
1
Спальни
3
Кровля
Скатная
Габариты
14,15 х 10 м
1.112.2020-907


Описание проекта

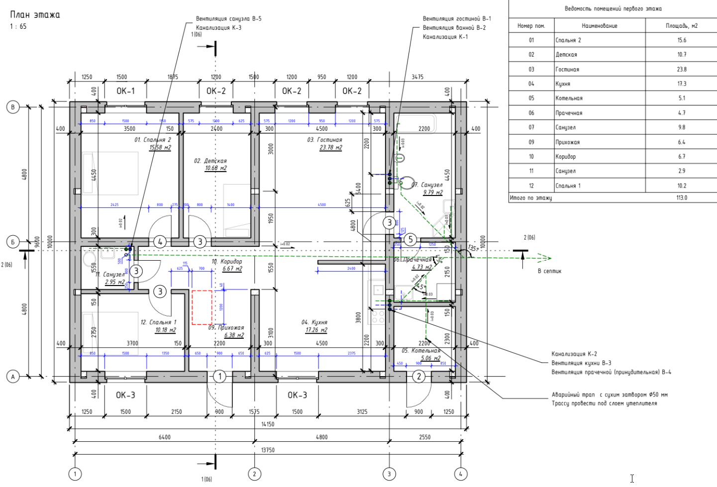
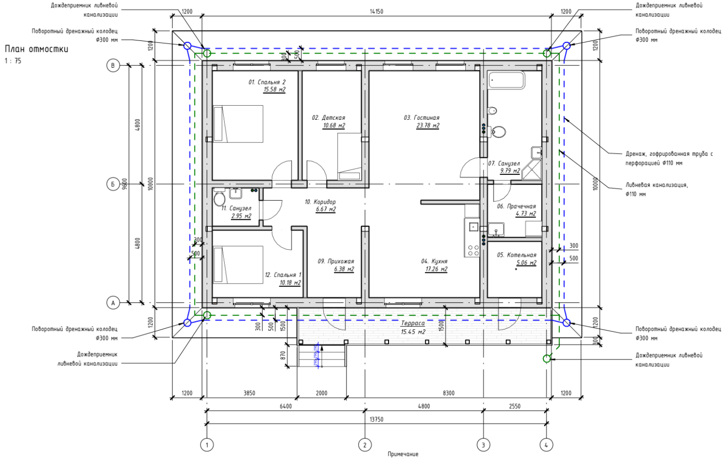
· Площадь застройки: 141.5 м2
· Общая площадь здания (сумма площадей помещений): 112.7 м2
· Площадь кровли здания (без навесов): 197 м2

3. Объемно-планировочные решения
· Количество наземных этажей: 1
· Наличие подвала: нет
· Режим эксплуатации чердачного пространства: частично холодный, над помещением гостиной и кухни второй свет
· Габаритные размеры дома и гаража в плане: 14,15х10 м
· Высота 1 этажа (от пола до потолка): 3.225 м
· Проектная нулевая отметка: уровень чистого пола 1-го этажа
· Высота здания (самая высокая точка здания): +7,020 м
4. Конструктивные решения:
· Материал наружных несущих стен:
1 слой - кладка из газобетонных блоков размерами 625х400х250 мм /D400 или D500/В2.5 (не ниже) ГОСТ 31360-2007 на клеевом растворе для тонкошовной кладки.
2 слой - штукатурка толщиной 5-20 мм.
· Материал внутренних несущих стен дома:
кладка из газобетонных блоков размерами 625х300х250 мм /D400 или D500/В2.5 (не ниже) ГОСТ 31360-2007 на клеевом растворе для тонкошовной кладки.
· Материал внутренних перегородок дома:
кладка из газобетонных блоков размерами 625х150х250 мм /D600 ГОСТ 31360-2007 на клеевом растворе для тонкошовной кладки.
· Вид фундамента дома: монолитный ленточный с утепленным полом по грунту.
· Перекрытие 1 этажа: по деревянным балкам. Утепляется эковатой, в качестве пароизоляции использовать полиэтиленовую пленку 140
гр/м2 (толщиной 200 мкм) по ГОСТ 10354-82.
· Конструкция кровли: двускатная. Холодная в осях "1"-"2", утепленная эковатой в осях "2"-"4".

Характеристика места строительства:
1. Сахалинская область, г. Южно-Сахалинск
2. Сейсмичность района строительства 8 баллов по шкале MSK-64. (СП 14.13330.2018)
• На период строительства здания предусмотреть мероприятия по защите грунтов основания от замачивания и промерзания (СП
45.13330.2012).
• Под подошвой фундамента выполнить подушку из уплотненной песчано-гравийной смеси с послойным уплотнением с коэффициентом
уплотнения k=0,95-0,98.
• Обратную засыпку пазух котлована выполнять талым непучинистыи грунтом с тщательным послойным уплотнением слоями не более
15-20 см.
1. Общие данные
· Объект проектирования – индивидуальный жилой дом на одну семью
· Проектируемые разделы:
1. Архитектурный раздел
2. Конструктивный раздел
2. Технико-экономические показатели