Этажность
1
Спальни
1
Кровля
Скатная
Габариты
14 х 8 м
ПРОЕКТ 1.065.2020-107
Описание проекта

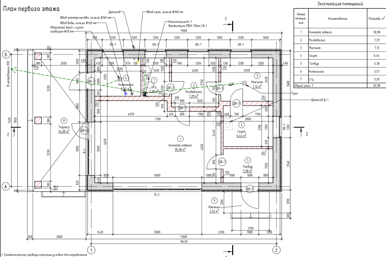
Площадь застройки: 112 м2
· Общая площадь здания (сумма площадей помещений): 65,98 м2
· Общая площадь здания (сумма площадей помещений, крыльца, террасы): 92,29 м2
· Площадь кровли здания (без навесов): 151,36 м2
Объемно-планировочные решения
· Количество наземных этажей: 1
· Наличие подвала или цокольного этажа: нет
· Габаритные размеры дома в плане: 14 х 8 м
· Высота 1 этажа (от пола до потолка): 2,725 м
· Проектная нулевая отметка: уровень чистого пола 1-го этажа
· Верхняя высотная отметка здания: +4,120 м
Конструктивные решения:
• Наружные несущие стены (по направлению к внешнему слою):
Кладка из газобетонных блоков (ДхВхШ) 600х250х400 мм, не выше D400, не ниже В2
Кладка из облицовочного кирпича формата 0,5 НФ (ДхВхШ) 250х65х60 мм на растворе марки не ниже М100
· Внутренние несущих стены: кладка из керамического полнотелого кирпича формата 1НФ (ДхВхШ) 250х65х120 мм на
растворе марки не ниже М100
· Внутренние перегородоки: кладка из керамического полнотелого кирпича формата 1НФ (ДхВхШ) 250х65х120 мм на
растворе марки не ниже М100
· Фундамент: плита на утепленном основании
· Перекрытие над первым этажом: перекрытие по деревянным балкам
· Конструкция кровли: четырехскатная
Объект проектирования: баня
· Раздел проекта: архитектурно-строительные решения (АС)
• Условия строительства: летние условия строительства
Характеристики места строительства
• Район строительства: Псковская область
• Расчетная зимняя температура наиболее холодной пятидневки, об. 0,92 (СП 131.13330.2018): минус 26 °С
• Расчетная внутренняя температура воздуха: 22 °С
• Градусо-сутки отопительного периода, ГСОП (СП 131.13330.2018 и СП 50.13330.2012): 4430,4 °С*сут/год
• Снеговой район, снеговая нагрузка (карты Приложения Ж СП 20.13330.2016): 3-й район, 150 кгс/м2 (1,5кПа)
• Сейсмичность района строительства по шкале MSK-64 (СП 14.13330.2018): менее 6 баллов